Plan No.291349
A Charmed Life
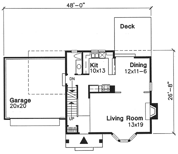
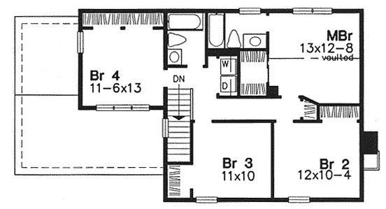
The attention to detail and fine planning that went into this charming, compact design allow your family to lead a comfortable life for an affordable price. A covered entry with stylish columns and trim work lend the facade a fashionable look far beyond the home's cost. Inside, a bay window in the living room provides a cozy alcove where you may read a novel on a rainy day. A fireplace adds appeal. The dining room serves well for casual meals and formal family dinners. Kids will love to pull up a stool to snack bar for an after-school treat. That same bar will simplify task of serving hors d'oeuvres when you entertain. Sliding glass doors open to a backyard deck, where friends and family will enjoy many summer barbecues. Upstairs, a vaulted ceiling in the master bedroom creates the elegant look you deserve, while the private bath lets you prepare for the day away from family clamor.
Specifications
Total 1616 sq ft
- Main: 738
- Second: 878
- Third: 0
- Loft/Bonus: 0
- Basement: 0
- Garage: 0
Rooms
- Beds: 4
- Baths: 2
- 1/2 Bath: 1
- 3/4 Bath: 0
Ceiling Height
- Main:
- Second:
- Third:
- Loft/Bonus:
- Basement:
- Garage:
Details
- Exterior Walls: 2x6
- Garage Type: doubleGarage
- Width: 48'0
- Depth: 26'8
Roof
- Max Ridge Height: 24'0
- Comments: ()
- Primary Pitch: 0/12
- Secondary Pitch: 0/12

833–493–0942

