Plan No.294049
European Charm
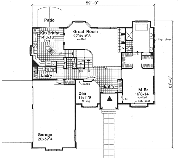
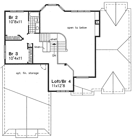
European Charm This charming home boasts a vaulted Great Room offering a sunny bay window. The spacious island kitchen opens to a breakfast area with views to the back patio. Dual walk-in closets and a luxurious private bath are featured in the master suite.
Specifications
Total 2650 sq ft
- Main: 1990
- Second: 660
- Third: 0
- Loft/Bonus: 0
- Basement: 1990
- Garage: 0
Rooms
- Beds: 3
- Baths: 2
- 1/2 Bath: 1
- 3/4 Bath: 0
Ceiling Height
- Main:
- Second:
- Third:
- Loft/Bonus:
- Basement:
- Garage:
Details
- Exterior Walls: 2x6
- Garage Type: doubleGarage
- Width: 59'0"
- Depth: 61'0"
Roof
- Max Ridge Height: 29'0"
- Comments: ()
- Primary Pitch: 0/12
- Secondary Pitch: 0/12
Add to Cart
Pricing
– westhomeplanners.com
– westhomeplanners.com
– westhomeplanners.com
[Back to Search Results]

833–493–0942

