Plan No.297339
Dazzling Design With Many Amenities
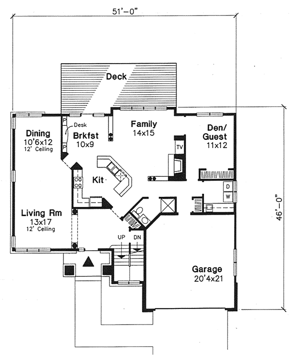
This fabulous design has a central kitchen which overlooks the cozy family room and boasts an adjoining breakfast room, which features delightful views to a rear deck. The formal living and dining rooms flow together to create a large entertaining space. A main-floor den may also serve as a guest room.
Specifications
Total 2742 sq ft
- Main: 1502
- Second: 1240
- Third: 0
- Loft/Bonus: 0
- Basement: 1502
- Garage: 0
Rooms
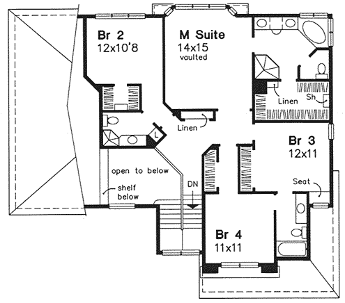
- Beds: 4
- Baths: 4
- 1/2 Bath: 0
- 3/4 Bath: 0
Ceiling Height
- Main:
- Second:
- Third:
- Loft/Bonus:
- Basement:
- Garage:
Details
- Exterior Walls: 2x6
- Garage Type: doubleGarage
- Width: 51'0
- Depth: 46'0
Roof
- Max Ridge Height: 29'0
- Comments: ()
- Primary Pitch: 0/12
- Secondary Pitch: 0/12
Add to Cart
Pricing
– westhomeplanners.com
– westhomeplanners.com
– westhomeplanners.com
[Back to Search Results]

833–493–0942

