Plan No.299139
A cost effective home with all the family lifestyles
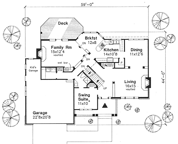
Rear family-breakfast-kitchen is a 26 foot sweep of family living. Center hall is a true traffic divider with easy access from garage as well as front door. Three bedrooms are all especially generous. Master suite features a sitting bay window, double walk-in closets and a luxurious bath with separate shower and tub.
Specifications
Total 2623 sq ft
- Main: 1433
- Second: 1190
- Third: 0
- Loft/Bonus: 0
- Basement: 1433
- Garage: 0
Rooms
- Beds: 4
- Baths: 3
- 1/2 Bath: 0
- 3/4 Bath: 0
Ceiling Height
- Main:
- Second:
- Third:
- Loft/Bonus:
- Basement:
- Garage:
Details
- Exterior Walls: 2x4
- Garage Type: doubleGarage
- Width: 59'0"
- Depth: 44'0"
Roof
- Max Ridge Height: 28'0"
- Comments: ()
- Primary Pitch: 0/12
- Secondary Pitch: 0/12
Add to Cart
Pricing
– westhomeplanners.com
– westhomeplanners.com
– westhomeplanners.com
[Back to Search Results]

833–493–0942

