Plan No.299329
Classic Styling
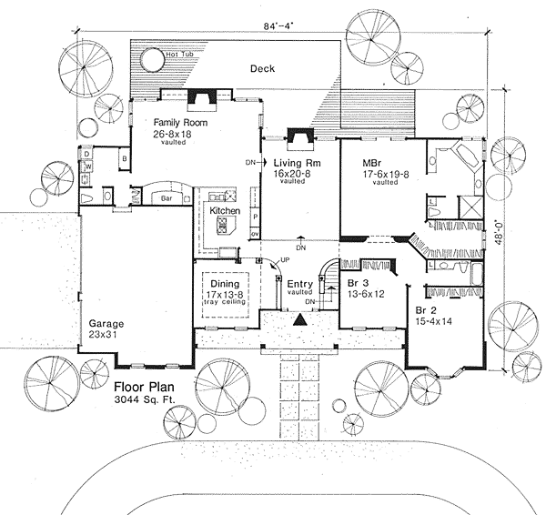
The classic styling of this wonderful one-story home gives it enduring warmth and charm. The open interior makes this family-oriented home great for entertaining. The super-sized family room has a vaulted ceiling, a breakfast corner, a fireplace with an adjoining entertainment center, and an exciting wet bar. Between the family room and the formal dining room is a neatly arranged kitchen with an island range and a convenient pantry. The raised dining room is accented with a tray ceiling and defined by decorative columns and a half-wall. Directly ahead of the foyer is the formal, sunken living room, which features a vaulted ceiling and a dramatic fireplace centered between windows that overlook the expansive rear deck. The bedroom wing consists of a pair of secondary bedrooms and a huge master suite. The vaulted master bedroom opens to its own deck and offers a big walk-in closet and a private bath with a garden tub and separate dressing areas.
Specifications
Total 3044 sq ft
- Main: 3044
- Second: 0
- Third: 0
- Loft/Bonus: 0
- Basement: 3044
- Garage: 0
Rooms
- Beds: 3
- Baths: 2
- 1/2 Bath: 1
- 3/4 Bath: 0
Ceiling Height
- Main:
- Second:
- Third:
- Loft/Bonus:
- Basement:
- Garage:
Details
- Exterior Walls: 2x4
- Garage Type: tripleGarage
- Width: 85'0"
- Depth: 48'0"
Roof
- Max Ridge Height:
- Comments: ()
- Primary Pitch: 0/12
- Secondary Pitch: 0/12

833–493–0942
