Plan No.271003
Elegant and Exciting
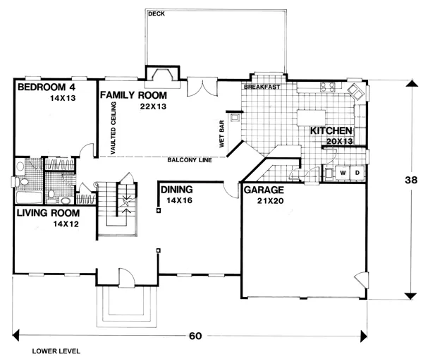
This elegant traditional stucco 1-1/2 story home features four bedrooms, one of which is located on the lower level. The floorplan is formal, having both a 14'x12' living room and a 22'x13' family room (with fireplace). In the spacious gourmet kitchen, counter and cabinet space abounds. The sunny breakfast nook provides an informal dining setting while the 14'x16' dining room is perfect for more formal entertaining. The plant bridge, overhead between the family room and breakfast room, is a delightful decorators touch. The upper level features an oversized master suite, with his and hers walk-in closets and a luxurious master bath. The two secondary bedrooms measure 14'x16 and 17'x15' and share a spacious bath. Overlooking the kitchen and family room, the upper level hall also has a view of the elegant foyer with it's tray ceiling.
Specifications
Total 3052 sq ft
- Main: 1759
- Second: 1293
- Third: 0
- Loft/Bonus: 0
- Basement: 1759
- Garage: 420
Rooms
- Beds: 4
- Baths: 3
- 1/2 Bath: 1
- 3/4 Bath: 0
Ceiling Height
- Main: 9'0
- Second: 8'0
- Third:
- Loft/Bonus:
- Basement: 8'0
- Garage: 10'4
Details
- Exterior Walls: 2x4
- Garage Type: doubleGarage
- Width: 60'0
- Depth: 38'0
Roof
- Max Ridge Height: 31'0
- Comments: ()
- Primary Pitch: 10/12
- Secondary Pitch: 0/12

833–493–0942

