Plan No.140213
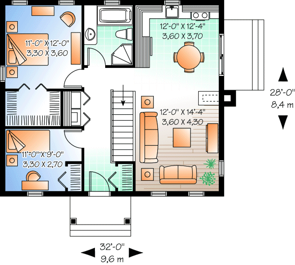
Economic construction with a special exterior character and interior comfort. Gas fireplace open on three sides separating the living room from the kitchen-dinette area. Complete bathroom with corner shower. Bedroom #1 with walk-in closet. Laundry area on 1st level.
Specifications
Total 896 sq ft
- Main: 896
- Second: 0
- Third: 0
- Loft/Bonus: 0
- Basement: 896
- Garage: 0
Rooms
- Beds: 2
- Baths: 1
- 1/2 Bath: 0
- 3/4 Bath: 0
Ceiling Height
- Main: 8'0
- Second:
- Third:
- Loft/Bonus:
- Basement: 8'0
- Garage:
Details
- Exterior Walls: 2x6
- Garage Type:
- Width: 32'0
- Depth: 28'0
Roof
- Max Ridge Height: 17'6
- Comments: ()
- Primary Pitch: 0/12
- Secondary Pitch: 0/12
Add to Cart
Pricing
– westhomeplanners.com
– westhomeplanners.com
– westhomeplanners.com
[Back to Search Results]

833–493–0942

