Plan No.293101
Vaulted Living Area
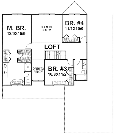
The vaulted family room and breakfast nook of this home will be where the action happens. A fireplace separates the two spaces, adding warmth, while the expansive kitchen provides a meal-preparation space even a chef would love. The two-story living room will provide an impressive space for entertaining guests and a dining room separate from the foyer by columns will be a fantastic space for special meals. A guest room, bath and den (which could be converted to another bedroom) complete the main floor. Upstairs, the fantastic master suite features a spacious bath with a garden tub, separate shower, private toilet and dual-sink vanity. A bridge over the living room and foyer separates the master suite from two more bedrooms and a bath.
Specifications
Total 2531 sq ft
- Main: 1585
- Second: 946
- Third: 0
- Loft/Bonus: 0
- Basement: 0
- Garage: 495
Rooms
- Beds: 4
- Baths: 3
- 1/2 Bath: 0
- 3/4 Bath: 0
Ceiling Height
- Main: 8'0
- Second: 8'0
- Third:
- Loft/Bonus:
- Basement:
- Garage:
Details
- Exterior Walls: 2x4
- Garage Type: doubleGarage
- Width: 50'0
- Depth: 59'0
Roof
- Max Ridge Height: 24'0
- Comments: ()
- Primary Pitch: 5/12
- Secondary Pitch: 0/12
Add to Cart
Pricing
– westhomeplanners.com
– westhomeplanners.com
– westhomeplanners.com
[Back to Search Results]

833–493–0942

