Plan No.366139
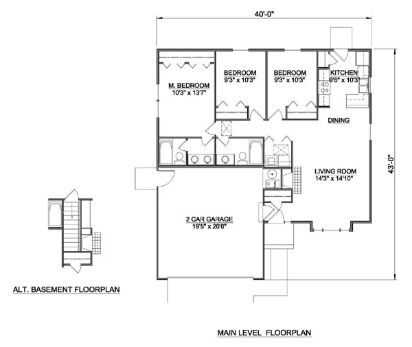
Features three bedrooms and two full baths. A spacious Living Room with optional fireplace flows into the Dining area. The well-equipped Kitchen with snack bar and built-in pantry features a door to the back yard for easy access. The Master Bedroom is complete with twin closets and a full compartment bath.
Specifications
Total 1100 sq ft
- Main: 1100
- Second: 0
- Third: 0
- Loft/Bonus: 0
- Basement: 0
- Garage: 385
Rooms
- Beds: 3
- Baths: 2
- 1/2 Bath: 0
- 3/4 Bath: 0
Ceiling Height
- Main: 8'0"
- Second:
- Third:
- Loft/Bonus:
- Basement:
- Garage:
Details
- Exterior Walls: 2x4
- Garage Type: doubleGarage
- Width: 40'0"
- Depth: 43'0"
Roof
- Max Ridge Height: 21'9"
- Comments: ()
- Primary Pitch: 8/12
- Secondary Pitch: 0/12
Add to Cart
Pricing
– westhomeplanners.com
– westhomeplanners.com
[Back to Search Results]

833–493–0942
