Plan No.364301
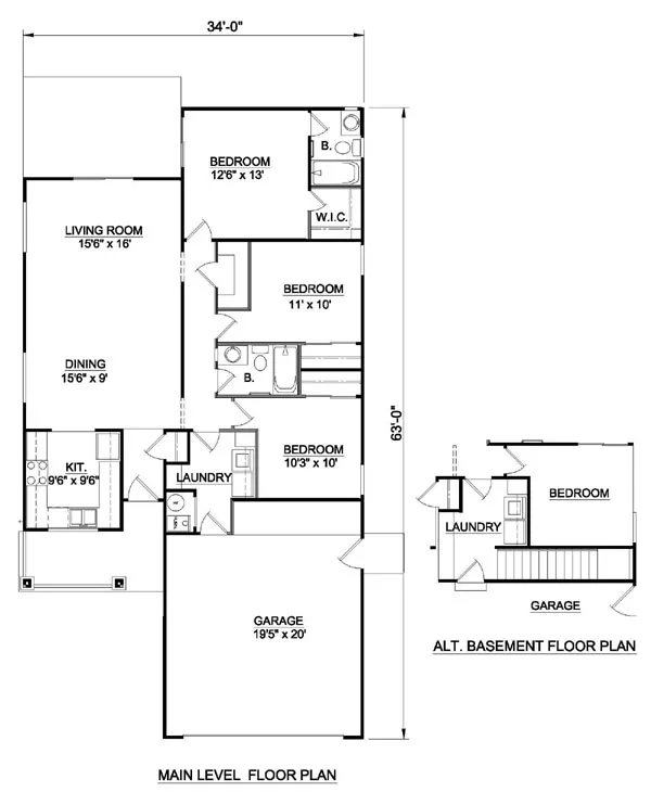
Features three bedrooms and two full baths. A large Living Room features sliding doors opening onto the patio for convenient indoor/outdoor entertaining. The Dining area flows into the Living Room, giving an open spacious look. The well-equipped U-shaped Kitchen looks out over the front walk. The Master Bedroom is complete with a private bath and walk-in-closet. Sliding Glass Doors allow access to the Patio from the Master Bedroom. A Laundry/Mud Room leads to the Garage.
Specifications
Total 1255 sq ft
- Main: 1255
- Second: 0
- Third: 0
- Loft/Bonus: 0
- Basement: 0
- Garage: 244
Rooms
- Beds: 3
- Baths: 2
- 1/2 Bath: 0
- 3/4 Bath: 0
Ceiling Height
- Main: 8'0"
- Second:
- Third:
- Loft/Bonus:
- Basement:
- Garage:
Details
- Exterior Walls: 2x4
- Garage Type: singleGarage
- Width: 34'0"
- Depth: 63'0"
Roof
- Max Ridge Height: 17'6"
- Comments: ()
- Primary Pitch: 5/12
- Secondary Pitch: 0/12
Add to Cart
Pricing
– westhomeplanners.com
– westhomeplanners.com
[Back to Search Results]

833–493–0942
