Plan No.114171
Private Porch
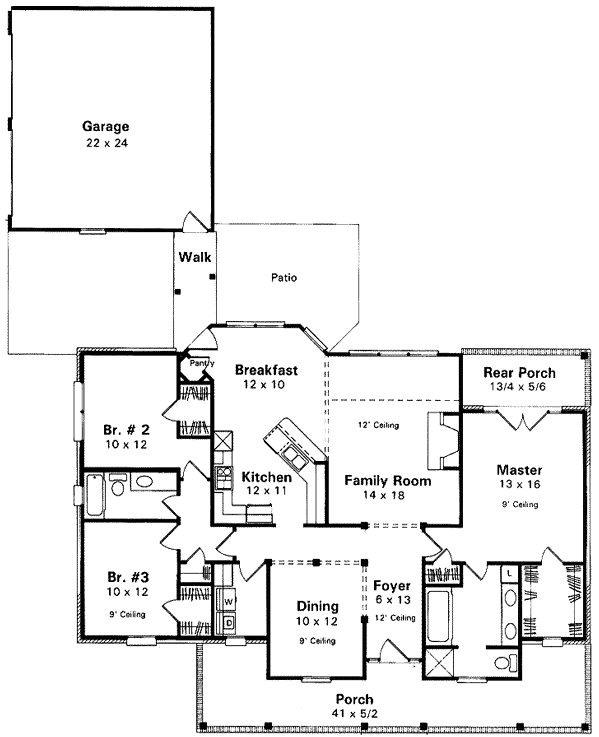
The dining room is open to the foyer, with the fireplace-warmed family room straight ahead. An efficient kitchen sits across the hall from the dining room. A nearby breakfast nook, with its own patio and corner pantry, has a door to the walkway leading to a gigantic garage. Two bedrooms with walk-in closets line one wing of the main floor, while the master bedroom shares the other wing with its own private full bath and walk-in closet. There?s even a private rear porch, accessible only from the master bedroom. This home is designed with slab and crawlspace foundation options. The house by itself is 55'-0" wide x 40'-0" deep.
Specifications
Total 1714 sq ft
- Main: 1714
- Second: 0
- Third: 0
- Loft/Bonus: 0
- Basement: 0
- Garage: 528
Rooms
- Beds: 3
- Baths: 2
- 1/2 Bath: 0
- 3/4 Bath: 0
Ceiling Height
- Main: 9'0"
- Second:
- Third:
- Loft/Bonus:
- Basement:
- Garage:
Details
- Exterior Walls: 2x4
- Garage Type: doubleGarage
- Width: 62'0"
- Depth: 67'0"
Roof
- Max Ridge Height: 24'0"
- Comments: ()
- Primary Pitch: 8/12
- Secondary Pitch: 0/12
Add to Cart
Pricing
– westhomeplanners.com
– westhomeplanners.com
[Back to Search Results]

833–493–0942
