Plan No.195046
Angled Rancher
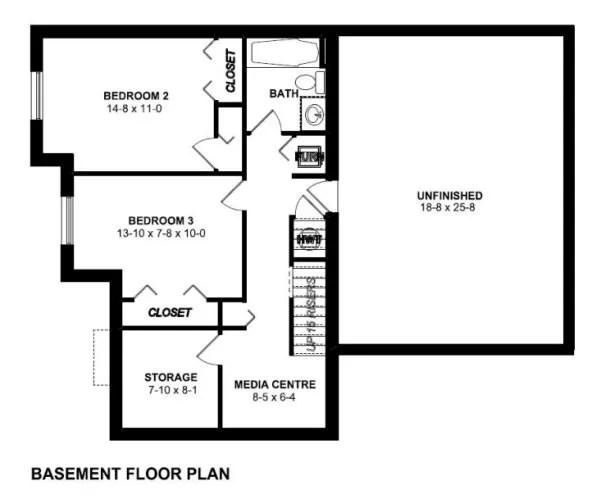
This compact full basement rancher is designed with an angled lot in mind but will work on any lot. The spacious master bedroom, and open living area with tray ceilings give this home an impressive feel in a small space. The basement has two bedrooms and a bathroom as well as a large unfinished area for use as a recreation area or more bedrooms.
Specifications
Total 1275 sq ft
- Main: 1275
- Second: 0
- Third: 0
- Loft/Bonus: 0
- Basement: 1269
- Garage: 409
Rooms
- Beds: 3
- Baths: 2
- 1/2 Bath: 1
- 3/4 Bath: 0
Ceiling Height
- Main: 9'0
- Second:
- Third:
- Loft/Bonus:
- Basement: 8'0
- Garage:
Details
- Exterior Walls: 2x6
- Garage Type: doubleGarage
- Width: 44'6
- Depth: 48'6
Roof
- Max Ridge Height: 19'9
- Comments: ()
- Primary Pitch: 6/12
- Secondary Pitch: 0/12
Add to Cart
Pricing
– westhomeplanners.com
– westhomeplanners.com
– westhomeplanners.com
– westhomeplanners.com
– westhomeplanners.com
– westhomeplanners.com
[Back to Search Results]

833–493–0942




