Plan No.271052
Traditional European
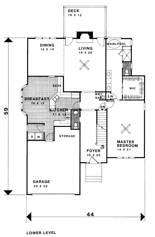
This 2,580 sq.ft. European traditional plan features a stucco elevation. The dramatic two-story foyer has a large upper level radius top window. The open kitchen and breakfast area features a bay window and built-in desk. The 13'x14' dining room is open to the two-story living room which features a fireplace and two doors opening onto the 16'x12' deck. A built-in wet bar is located outside of the living room. The large master suite pampers the owner with a whirlpool tub, shower, double vanity, linen closet and large walk-in closet. The upper level balcony overlooks the living room. Bedroom #2, measuring 14'x13', and bedroom #3, measuring 11'x14', each have walk-in closets, dressing areas with vanities and they share a private bath which includes a large linen closet. The optional fourth bedroom measures 13'x15' and features two closets and a private bath. This plan is ideal for narrow lots, measuring only 44' wide and 59' deep.
Specifications
Total 2580 sq ft
- Main: 1855
- Second: 725
- Third: 0
- Loft/Bonus: 0
- Basement: 1855
- Garage: 400
Rooms
- Beds: 3
- Baths: 2
- 1/2 Bath: 1
- 3/4 Bath: 0
Ceiling Height
- Main: 9'0
- Second: 8'0
- Third:
- Loft/Bonus:
- Basement: 8'0
- Garage: 10'4
Details
- Exterior Walls: 2x4
- Garage Type: doubleGarage
- Width: 44'0
- Depth: 59'0
Roof
- Max Ridge Height: 33'0
- Comments: ()
- Primary Pitch: 12/12
- Secondary Pitch: 0/12

833–493–0942

