Plan No.385159
Ranch Round Up
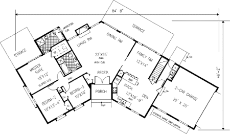
The classic exterior introduces this one-story home. Dramatic double doors open to the reception area that extends to the formal areas ahead. A cozy fireplace is found in the living room. The U-shaped kitchen contains an eating bar and connects to the family room and den. Sliding glass doors lead from the family room to the terrace. The master suite has sloped ceilings and a private master bath. Sliding doors lead to a private terrace. Two additional bedrooms share another full bath.
Specifications
Total 1636 sq ft
- Main: 1636
- Second: 0
- Third: 0
- Loft/Bonus: 0
- Basement: 1636
- Garage: 0
Rooms
- Beds: 3
- Baths: 2
- 1/2 Bath: 0
- 3/4 Bath: 0
Ceiling Height
- Main:
- Second:
- Third:
- Loft/Bonus:
- Basement:
- Garage:
Details
- Exterior Walls: 2x6
- Garage Type: doubleGarage
- Width: 85'0
- Depth: 47'0
Roof
- Max Ridge Height: 17'0"
- Comments: ()
- Primary Pitch: 0/12
- Secondary Pitch: 0/12
Add to Cart
Pricing
– westhomeplanners.com
– westhomeplanners.com
[Back to Search Results]

833–493–0942
