Plan No.185151
Open Plan Accented by Loft
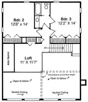
The first floor living space of this inviting home blends the family room and dining room for comfortable family living. The large kitchen shares a preparation-eating bar with the dining room. The ample utility room is designed with a pantry, plus room for a freezer, washer and dryer.
Specifications
Total 2015 sq ft
- Main: 1280
- Second: 735
- Third: 0
- Loft/Bonus: 0
- Basement: 0
- Garage: 0
Rooms
- Beds: 3
- Baths: 2
- 1/2 Bath: 1
- 3/4 Bath: 0
Ceiling Height
- Main: 8
- Second: 8'
- Third:
- Loft/Bonus:
- Basement:
- Garage:
Details
- Exterior Walls: 2x6
- Garage Type:
- Width: 43'
- Depth: 57'
Roof
- Max Ridge Height: 32'
- Comments: ()
- Primary Pitch: 10/12
- Secondary Pitch: 6/12
Add to Cart
Pricing
– westhomeplanners.com
Opt. Crawl / Slab Plan – westhomeplanners.com
– westhomeplanners.com
– westhomeplanners.com
Artist's Sketch – westhomeplanners.com
Front Photo – westhomeplanners.com
View from Loft – westhomeplanners.com
– westhomeplanners.com
[Back to Search Results]

833–493–0942






