Plan No.316320
Unique Island Kitchen
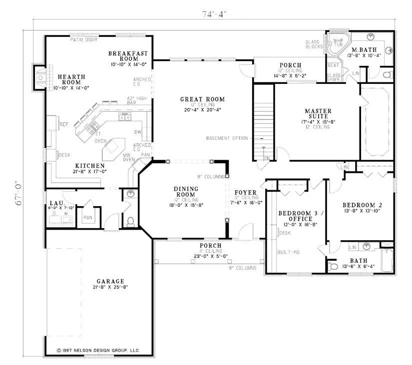
Imagine hosting a dinner party in this marvelous home. An expansive dining room with exquisite columns will be the perfect setting for your large gatherings. The warm hearth room can be a more appropriate room for your family to enjoy each other's company. You will have plenty of counter space and a unique island to prepare large meals. The office features a built-in desk and other built-ins to provide ample shelf space. At the end of the day, you can relax in your master suit with enormous walk-in closet and a fully appointed master bath. An optional basement will make the perfect home theatre!
Specifications
Total 3034 sq ft
- Main: 3034
- Second: 0
- Third: 0
- Loft/Bonus: 0
- Basement: 0
- Garage: 556
Rooms
- Beds: 3
- Baths: 2
- 1/2 Bath: 1
- 3/4 Bath: 0
Ceiling Height
- Main: 9'0"
- Second:
- Third:
- Loft/Bonus:
- Basement:
- Garage: 10'4"
Details
- Exterior Walls: 2x4
- Garage Type: doubleGarage
- Width: 74'4"
- Depth: 67'0"
Roof
- Max Ridge Height: 33'4"
- Comments: ()
- Primary Pitch: 12/12
- Secondary Pitch: 0/12
Add to Cart
Pricing
– westhomeplanners.com
– westhomeplanners.com
– westhomeplanners.com
[Back to Search Results]

833–493–0942

