Plan No.315210
Grilling Porch
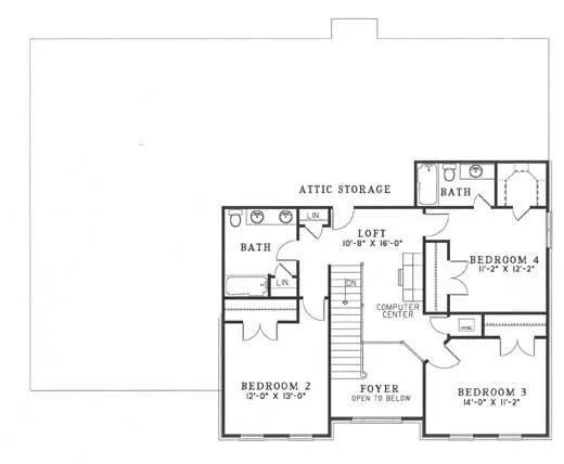
Upon entering this French Classic home notice the ambiance that is radiated throughout this design. French doors access the formal living area or study with built-in bookshelves. The spacious great room opens to the kitchen and breakfast room has a great rear view along with easy access to the grilling porch for the grill masters. The Master Suite provides all the seclusion needed at the end of the day, complete with master bath and a huge walk-in closet. The kids will have a floor of their own featuring a computer center and two full baths. < Optional Basement or Daylight Basement Foundation Available for additional $250>
Specifications
Total 2802 sq ft
- Main: 1834
- Second: 968
- Third: 0
- Loft/Bonus: 0
- Basement: 0
- Garage: 770
Rooms
- Beds: 4
- Baths: 3
- 1/2 Bath: 1
- 3/4 Bath: 0
Ceiling Height
- Main: 9'0
- Second: 9'0
- Third:
- Loft/Bonus:
- Basement:
- Garage: 10'4
Details
- Exterior Walls: 2x4
- Garage Type: tripleGarage
- Width: 60'4
- Depth: 55'2
Roof
- Max Ridge Height: 29'3
- Comments: ()
- Primary Pitch: 9/12
- Secondary Pitch: 9/12
Add to Cart
Pricing
– westhomeplanners.com
– westhomeplanners.com
– westhomeplanners.com
– westhomeplanners.com
[Back to Search Results]

833–493–0942


