Plan No.354880
Vaulted & Decor Ceilings
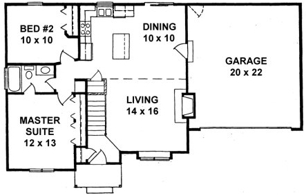
2 Bedroom Ranch house with vaulted ceilings in the main living areas along with plant shelves over the kitchen cabinets and the hall closet. The master bedroom features Jack & Jill closet space and a Hollywood bath.
Specifications
Total 884 sq ft
- Main: 884
- Second: 0
- Third: 0
- Loft/Bonus: 0
- Basement: 1136
- Garage: 440
Rooms
- Beds: 2
- Baths: 1
- 1/2 Bath: 0
- 3/4 Bath: 0
Ceiling Height
- Main: 8'0
- Second:
- Third:
- Loft/Bonus:
- Basement: 8'0
- Garage:
Details
- Exterior Walls: 2x4
- Garage Type: 2 Car Garage
- Width: 52'0
- Depth: 32'0
Roof
- Max Ridge Height:
- Comments: ()
- Primary Pitch: 6/12
- Secondary Pitch: 0/12
Add to Cart
Pricing
– westhomeplanners.com
– westhomeplanners.com
Alt. Color Scheme – westhomeplanners.com
– westhomeplanners.com
[Back to Search Results]

833–493–0942


