Plan No.138698
Dramatic Yet Refined
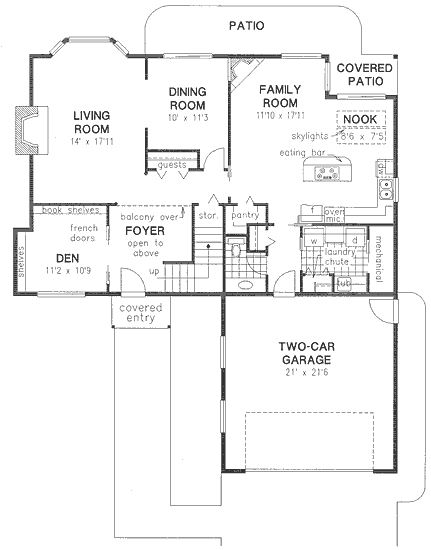
Refined exterior with dramatic arched entry. Expansive open foyer, with railed staircase, leads to spacious upper hallways. Library/den is accessed through double french doors off of main foyer. Open kitchen with center island, breakfast bar and skylit nook creates a spacious but cozy atmosphere. Elegant master suite features bay window, large walk-in closet and five piece bath. Bonus room provides an extra 330 square feet. Additional ceiling height information: Foyer - 16'10".
Specifications
Total 2350 sq ft
- Main: 1371
- Second: 979
- Third: 0
- Loft/Bonus: 0
- Basement: 0
- Garage: 451
Rooms
- Beds: 3
- Baths: 2
- 1/2 Bath: 1
- 3/4 Bath: 0
Ceiling Height
- Main: 8'0"
- Second: 8'0"
- Third:
- Loft/Bonus:
- Basement:
- Garage: 9'4"
Details
- Exterior Walls: 2x6
- Garage Type: doubleGarage
- Width: 48'0"
- Depth: 54'4"
Roof
- Max Ridge Height: 28'4"
- Comments: ()
- Primary Pitch: 12/12
- Secondary Pitch: 0/12
Add to Cart
Pricing
– westhomeplanners.com
– westhomeplanners.com
– westhomeplanners.com
– westhomeplanners.com
[Back to Search Results]

833–493–0942


