Plan No.260731
Warming Gas Fireplace
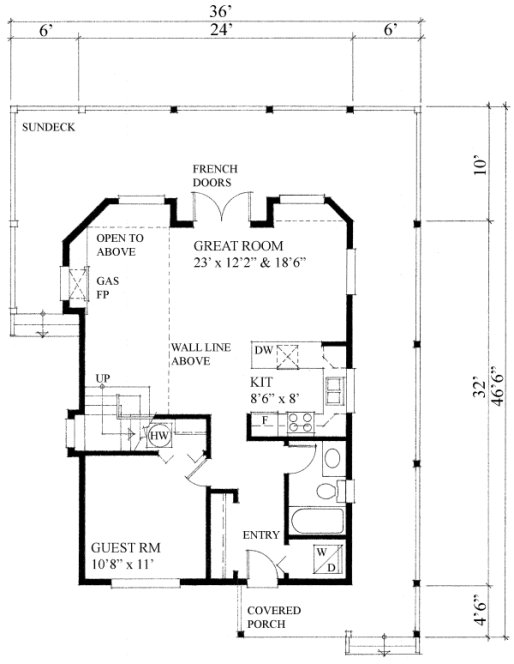
This separated three bedroom vacation retreat boasts a warming gas fireplace in the Great Room that opens up to an inviting wrap around multi purpose deck through double French doors. With the entire Kitchen being open to the Great Room it makes this a truly open and expansive versatile year round living space. The upstairs Master Bedroom has two interior functionally opening windows that overlook the Great Room below creating a unique look and feel to this suite. Two skylights aligned with these windows flood this area with natural warming light. A private secluded personal balcony is accessed via triple French doors for those quiet reflective moments or sunset salutes.
Specifications
Total 1370 sq ft
- Main: 795
- Second: 575
- Third: 0
- Loft/Bonus: 0
- Basement: 0
- Garage: 0
Rooms
- Beds: 3
- Baths: 2
- 1/2 Bath: 0
- 3/4 Bath: 0
Ceiling Height
- Main: 8'0
- Second: 10'0
- Third:
- Loft/Bonus:
- Basement:
- Garage:
Details
- Exterior Walls: 2x6
- Garage Type:
- Width: 36'0
- Depth: 46'6
Roof
- Max Ridge Height: 29'0
- Comments: (Main Floor to Peak)
- Primary Pitch: 12/12
- Secondary Pitch: 0/12
Add to Cart
Pricing
– westhomeplanners.com
– westhomeplanners.com
– westhomeplanners.com
Front Elevn – westhomeplanners.com
Left Elevn – westhomeplanners.com
Right Elevn – westhomeplanners.com
Rear Elevn – westhomeplanners.com
Rear-Bldr Modified – westhomeplanners.com
Artist's Rendering – westhomeplanners.com
Great Room – westhomeplanners.com
Master Suite – westhomeplanners.com
Kitchen to Dining – westhomeplanners.com
Great Room to Kitchen – westhomeplanners.com
Great Room from Stairs – westhomeplanners.com
Great Room from Br 2 – westhomeplanners.com
[Back to Search Results]

833–493–0942













