Plan No.266821
Versatile Great Room
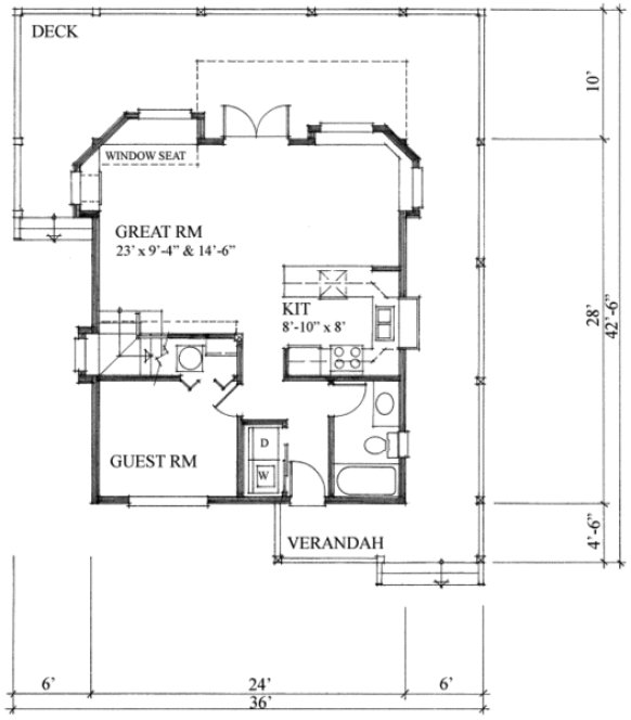
The versatile first level Great Room with direct vent zero clearance fireplace and cosy window seat allows for smooth seasonal transitions. The Kitchen�s rear eating bar ensures everyone�s participation in the chosen activities and creates the illusion of a much larger space. The entire second level is dedicated to the Studio Bedroom and spacious Master Bathroom. Ten foot vaulted ceilings, two window filled dormers and a covered Balcony makes this a creative and reflective waiting to be experienced environment. Plans designed with a poured concrete crawl space foundation plan.
Specifications
Total 1286 sq ft
- Main: 672
- Second: 614
- Third: 0
- Loft/Bonus: 0
- Basement: 0
- Garage: 0
Rooms
- Beds: 2
- Baths: 2
- 1/2 Bath: 0
- 3/4 Bath: 0
Ceiling Height
- Main: 8'0
- Second: 10'0
- Third:
- Loft/Bonus:
- Basement:
- Garage:
Details
- Exterior Walls: 2x6
- Garage Type:
- Width: 36'0
- Depth: 42'6
Roof
- Max Ridge Height: 25'0
- Comments: (Main Floor to Peak)
- Primary Pitch: 12/12
- Secondary Pitch: 6/12
Add to Cart
Pricing
– westhomeplanners.com
– westhomeplanners.com
– westhomeplanners.com
[Back to Search Results]

833–493–0942

