Plan No.264461
Relaxed Entertaining
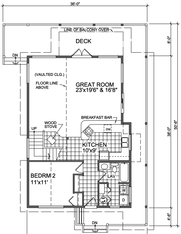
The multi-purpose great room with wrap-around covered porch encourages relaxed entertaining and is perfected suited for evolving family activities. The large u-shaped kitchen with raised breakfast bar is open to the great room ensuring everyone is included in the fun. The second level vaulted studio with private covered balcony easily transforms this retreat space into a home office or voluminous third bedroom if desired.
Specifications
Total 1644 sq ft
- Main: 955
- Second: 689
- Third: 0
- Loft/Bonus: 0
- Basement: 0
- Garage: 0
Rooms
- Beds: 2
- Baths: 2
- 1/2 Bath: 0
- 3/4 Bath: 0
Ceiling Height
- Main: 8'0
- Second: 10'
- Third:
- Loft/Bonus:
- Basement:
- Garage:
Details
- Exterior Walls: 2x6
- Garage Type:
- Width: 36'0
- Depth: 50'6
Roof
- Max Ridge Height: 25'0
- Comments: (Main Floor to Peak)
- Primary Pitch: 12/12
- Secondary Pitch: 6/12
Add to Cart
Pricing
– westhomeplanners.com
– westhomeplanners.com
– westhomeplanners.com
– westhomeplanners.com
[Back to Search Results]

833–493–0942


