Plan No.139119
Specifications
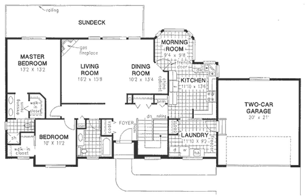
Total 1573 sq ft
- Main: 1573
- Second: 0
- Third: 0
- Loft/Bonus: 0
- Basement: 1573
- Garage: 420
Rooms
- Beds: 2
- Baths: 2
- 1/2 Bath: 0
- 3/4 Bath: 0
Ceiling Height
- Main: 8'0"
- Second:
- Third:
- Loft/Bonus:
- Basement: 8'0"
- Garage: 9'4"
Details
- Exterior Walls: 2x6
- Garage Type: doubleGarage
- Width: 73'6"
- Depth: 34'0"
Roof
- Max Ridge Height: 15'4"
- Comments: ()
- Primary Pitch: 5/12
- Secondary Pitch: 0/12
Add to Cart
Pricing
– westhomeplanners.com
– westhomeplanners.com
– westhomeplanners.com
[Back to Search Results]

833–493–0942

