Plan No.217032
Split Bedroom Floor Plan
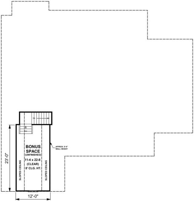
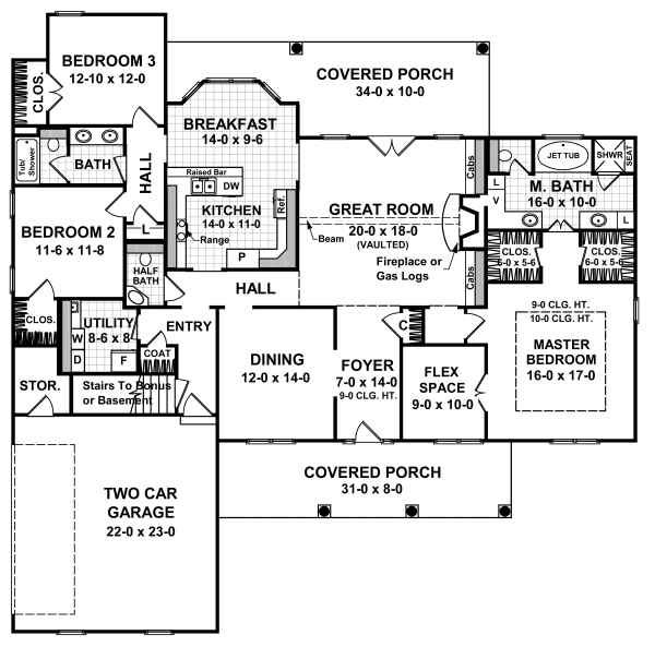
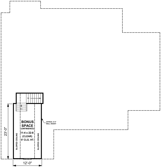
This home features a split-bedroom floorplan with wonderful open spaces. The expansive and well-appointed master suite includes trayed ceiling, large his and her walk-in closets, an oversized jet tub, separate shower, compartmentalized toilet, plenty of vanity space, and the much-requested sitting area / bonus / nursery space. Need space options for the future? No problem. Bonus space area over garage can be built when needed. Vaulted ceiling in the expansive great room with popular gas log fireplace. This home truly has the features that your family wants!
Specifications
Total 2307 sq ft
- Main: 2307
- Second: 0
- Third: 0
- Loft/Bonus: 294
- Basement: 0
- Garage: 620
Rooms
- Beds: 3
- Baths: 2
- 1/2 Bath: 1
- 3/4 Bath: 0
Ceiling Height
- Main: 9'0
- Second:
- Third:
- Loft/Bonus: 8'0
- Basement:
- Garage: 10'4
Details
- Exterior Walls: 2x4
- Garage Type: 2 Car Garage
- Width: 66'4
- Depth: 65'10
Roof
- Max Ridge Height: 28'3
- Comments: (Main Floor to Peak)
- Primary Pitch: 10/12
- Secondary Pitch: 12/12
Add to Cart
Pricing
– westhomeplanners.com
– westhomeplanners.com
– westhomeplanners.com
– westhomeplanners.com
[Back to Search Results]

833–493–0942


