Plan No.136354
This charming cottage comes with a Non-Garage version (Reversed). See Plan 134934
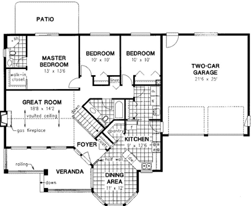
Specifications
Total 1368 sq ft
- Main: 1368
- Second: 0
- Third: 0
- Loft/Bonus: 0
- Basement: 0
- Garage: 537
Rooms
- Beds: 3
- Baths: 1
- 1/2 Bath: 0
- 3/4 Bath: 1
Ceiling Height
- Main: 8'0
- Second:
- Third:
- Loft/Bonus:
- Basement:
- Garage: 9'4
Details
- Exterior Walls: 2x6
- Garage Type: doubleGarage
- Width: 62'0
- Depth: 43'6
Roof
- Max Ridge Height: 21'0
- Comments: ()
- Primary Pitch: 8/12
- Secondary Pitch: 0/12
Add to Cart
Pricing
– westhomeplanners.com
– westhomeplanners.com
– westhomeplanners.com
[Back to Search Results]

833–493–0942

