Plan No.702731
Specifications
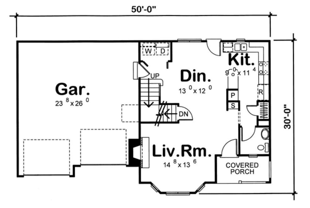
Total 1372 sq ft
- Main: 690
- Second: 682
- Third: 0
- Loft/Bonus: 304
- Basement: 690
- Garage: 605
Rooms
- Beds: 3
- Baths: 1
- 1/2 Bath: 1
- 3/4 Bath: 1
Ceiling Height
- Main: 9'0
- Second: 8'0
- Third:
- Loft/Bonus:
- Basement: 8'0
- Garage: 10'4
Details
- Exterior Walls: 2x4 Steel Studs
- Garage Type: doubleGarage
- Width: 50'0
- Depth: 30'0
Roof
- Max Ridge Height: 28'0
- Comments: ()
- Primary Pitch: 8/12
- Secondary Pitch: 0/12
Add to Cart
Pricing
– westhomeplanners.com
– westhomeplanners.com
– westhomeplanners.com
– westhomeplanners.com
[Back to Search Results]

833–493–0942


