Plan No.211522
Spacious Open Living
This home features a beautiful traditional style with spacious open living areas and the most-popular split-bedroom floorplan layout. Breathtaking views through a rhythmic series of windows and transoms across the rear of the great room. Very flexible design with the option of building 2.5 (without bonus room) or 3.5 (with upstairs bonus which may serve as bedroom #4) baths. Expansive great room features a 12-foot ceiling and corner fireplace with much-requested gas log fireplace. Beautiful rounded arches in the front view add balance and harmony to the design. Master suite includes your much needed home office / lounge, a privacy porch, large walk-in closet, and includes a large master bath with an oversized jet tub and separate shower. Large utility room and walk-in pantry provide plenty of storage space. Plenty of features in this home that will fit the needs of many families!
Specifications
Total 2251 sq ft
- Main: 2251
- Second: 0
- Third: 0
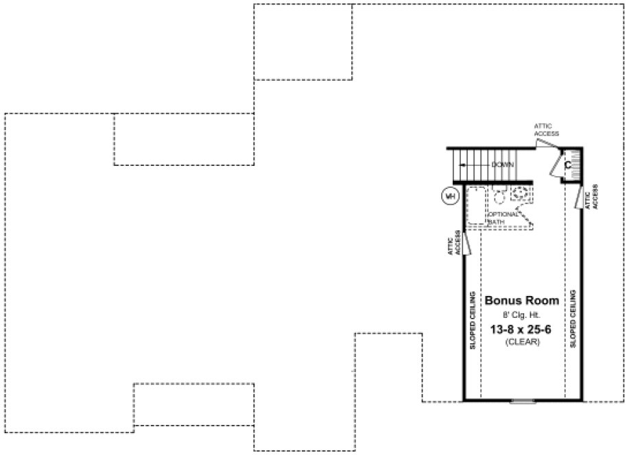
- Loft/Bonus: 455
- Basement: 2346
- Garage: 654
Rooms
- Beds: 3
- Baths: 2
- 1/2 Bath: 1
- 3/4 Bath: 0
Ceiling Height
- Main: 9'0
- Second:
- Third:
- Loft/Bonus: 8'0
- Basement: 8'0
- Garage: 10'4
Details
- Exterior Walls: 2x4
- Garage Type:
- Width: 73'8
- Depth: 53'2
Roof
- Max Ridge Height: 22'3
- Comments: ()
- Primary Pitch: 8/12
- Secondary Pitch: 10/12

833–493–0942


