Plan No.235026
Beautiful Blend of Features
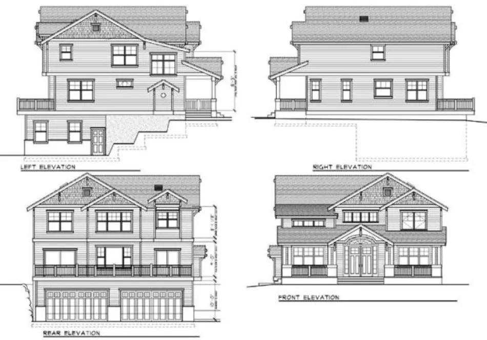
This charming Craftsman Bungalow offers a beautiful blend of features from both architectural styles. The kitchen includes a large cook top island with eating bar and a generous walk-in pantry, and the kitchen and nook open to the spacious family room with a cozy fireplace. A first floor bonus room is located adjacent to a full bath, making it perfect for a guest room or home office. The laundry room is situated upstairs for maximum efficiency, and the 4-car rear-entry garage at basement level provides tons of room for cars and storage. A fully covered porch spans the entre rear of the home; perfect for enjoying the outdoors in any season.
Specifications
Total 2615 sq ft
- Main: 1413
- Second: 1202
- Third: 0
- Loft/Bonus: 0
- Basement: 941
- Garage: 865
Rooms
- Beds: 5
- Baths: 3
- 1/2 Bath: 0
- 3/4 Bath: 0
Ceiling Height
- Main: 9'0
- Second: 8'0
- Third:
- Loft/Bonus:
- Basement: 8'0
- Garage: 8'4
Details
- Exterior Walls: 2x6
- Garage Type: tripleGarage
- Width: 42'0
- Depth: 52'0
Roof
- Max Ridge Height: 27'0
- Comments: (Main Floor to Peak)
- Primary Pitch: 7/12
- Secondary Pitch: 3/12
Add to Cart
Pricing
– westhomeplanners.com
– westhomeplanners.com
– westhomeplanners.com
– westhomeplanners.com
Elevations – westhomeplanners.com
[Back to Search Results]

833–493–0942



