Plan No.581188
Compact Design with Full Sized Amenities
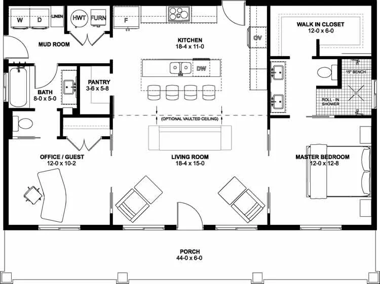
This plan features a spacious kitchen with ample storage and a large 9-1/2 foot long island which comfortably seats up to four. The kitchen has direct access to the walk-in pantry and rear patio. The optional vaulted ceiling in the living room and kitchen rises to 13'-3" at the center. The pocket doors leading into the main suite and guest room can either be closed for privacy or left open to provide great sightlines through the large 5' wide openings. The modern walk-in shower in the main bathroom provides both easy access and eliminates the maintenance required by glass doors. Measuring over 6' from end to end, the shower accommodates dual shower heads and a built-in bench. The main bathroom also includes a dual sink vanity and a large walk-in closet. This design also features doors with a minimum width of 32 inches throughout the house, a full front porch, a mudroom/laundry room complete with a linen cabinet, a large mechanical closet, and a full bath for guests. The guest room flex space can also be used as a home office.
Specifications
Total 1188 sq ft
- Main: 1188
- Second: 0
- Third: 0
- Loft/Bonus: 0
- Basement: 0
- Garage: 0
Rooms
- Beds: 2
- Baths: 2
- 1/2 Bath: 0
- 3/4 Bath: 0
Ceiling Height
- Main: 9'-0
- Second:
- Third:
- Loft/Bonus:
- Basement:
- Garage:
Details
- Exterior Walls: 2x6
- Garage Type: none
- Width: 44'-0
- Depth: 33'-0
Roof
- Max Ridge Height: 19'-9
- Comments: ( From Grade)
- Primary Pitch: 8/12
- Secondary Pitch: 4/12

833–493–0942






















