Plan No.216281
Modern Comfort & Southern Charm
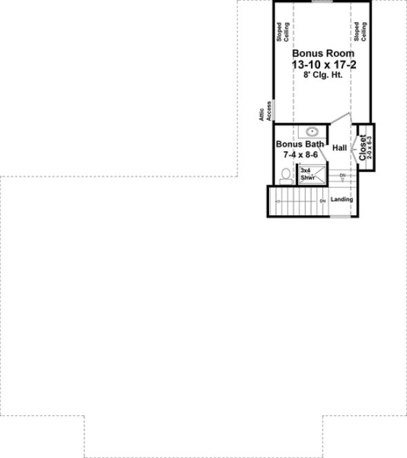
A beautifully designed 1,826 square-foot home plan crafted for modern comfort and Southern charm. This inviting 3-bedroom, 2.5-bathroom layout combines open-concept living with thoughtful details for everyday convenience, featuring a spacious family room, family kitchen with a large island, and a cozy dining nook. The home includes the popular bonus room for affordable expansion in the future, and the master suite features a large bathroom and walk-in closet. The covered front and back porches provide the perfect spots for relaxing or entertaining. Designed for families who value functionality and style, in an affordable-to-build home.
Specifications
Total 1826 sq ft
- Main: 1826
- Second: 0
- Third: 0
- Loft/Bonus: 373
- Basement: 0
- Garage: 642
Rooms
- Beds: 3
- Baths: 2
- 1/2 Bath: 1
- 3/4 Bath: 0
Ceiling Height
- Main: 9'0+
- Second:
- Third:
- Loft/Bonus: 8'0
- Basement:
- Garage:
Details
- Exterior Walls: 2x4
- Garage Type: 2 Car Garage
- Width: 58'0
- Depth: 65'2
Roof
- Max Ridge Height: 23'9
- Comments: (Main Floor to Peak)
- Primary Pitch: 8/12
- Secondary Pitch: 0/12
Add to Cart
Pricing
– westhomeplanners.com
– westhomeplanners.com
– westhomeplanners.com
[Back to Search Results]

833–493–0942

