Plan No.247990
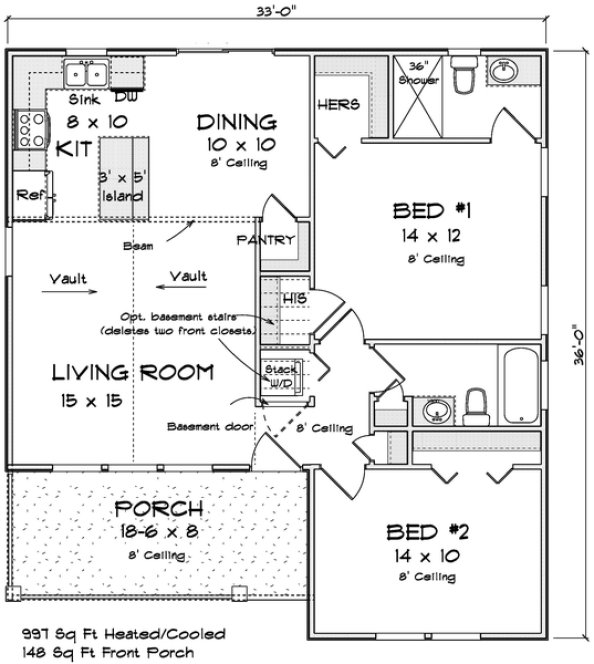
ADDITIONAL INFORMATION: Master Closet - 4-6 x 5 & 3 x 4, Master Bath - 9 x 5, Foyer - 3 x 3-6, Utility Room - 3 x 3, Bathroom 1 - 5 x 8, Bathroom 2 - 5 x 10-8, Pantry - 3 x 3, and Kitchen Island - 3 x 5. See our garage plan collection. If you order a house and garage plan at the same time, you will get 10% off your total order amount.
Specifications
Total 997 sq ft
- Main: 997
- Second: 0
- Third: 0
- Loft/Bonus: 0
- Basement: 0
- Garage: 0
Rooms
- Beds: 2
- Baths: 1
- 1/2 Bath: 0
- 3/4 Bath: 1
Ceiling Height
- Main: 8'0+
- Second:
- Third:
- Loft/Bonus:
- Basement:
- Garage:
Details
- Exterior Walls: 2x4
- Garage Type: none
- Width: 33'0
- Depth: 36'0
Roof
- Max Ridge Height: 16'10
- Comments: (Main Floor to Peak)
- Primary Pitch: 6/12
- Secondary Pitch: 6/12
Add to Cart
Pricing
Front Rendering – westhomeplanners.com
Main Floor Plan – westhomeplanners.com
Front Porch – westhomeplanners.com
Front & Right – westhomeplanners.com
Rear & Right – westhomeplanners.com
Rear & Left – westhomeplanners.com
Front & Left – westhomeplanners.com
Aerial View – westhomeplanners.com
3D Floor Plan – westhomeplanners.com
[Back to Search Results]

833–493–0942







