Plan No.301992
Modern Farmhouse Style Triplex
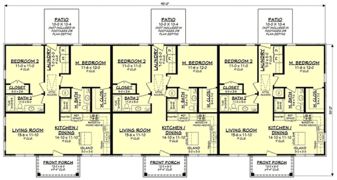
3 Units of 997 sq. ft. each, featuring an open kitchen, dining, living space with 2 bedrooms and 2 baths. There is a walk-in closet in the main bedroom with a dedicated laundry space at rear entry per unit.
Specifications
Total 2991 sq ft
- Main: 2991
- Second: 0
- Third: 0
- Loft/Bonus: 0
- Basement: 0
- Garage: 0
Rooms
- Beds: 6
- Baths: 6
- 1/2 Bath: 0
- 3/4 Bath: 0
Ceiling Height
- Main: 9'0
- Second:
- Third:
- Loft/Bonus:
- Basement:
- Garage:
Details
- Exterior Walls: 2x4
- Garage Type: none
- Width: 93'0
- Depth: 38'2
Roof
- Max Ridge Height: 19'0
- Comments: (Main Floor to Peak)
- Primary Pitch: 7/12
- Secondary Pitch: 0/12
Add to Cart
Pricing
– westhomeplanners.com
– westhomeplanners.com
Dusk Rendering – westhomeplanners.com
– westhomeplanners.com
– westhomeplanners.com
– westhomeplanners.com
FRONT Elevation – westhomeplanners.com
[Back to Search Results]

833–493–0942





