Plan No.581498
Compact Design with Full Sized Amenities
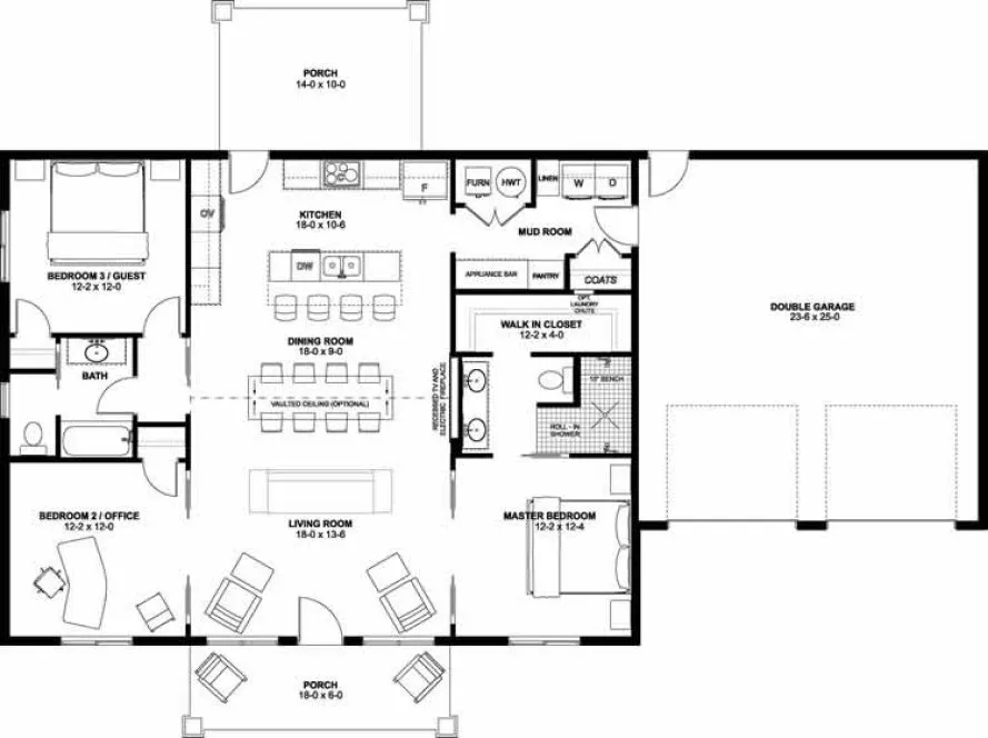
This plan features a spacious kitchen with ample storage and a large 9 foot long kitchen island which comfortably seats four. The pantry includes an appliance bar to keep your coffee maker and other counter appliances tucked away yet easily accessible. The dining area is enhanced by a 72inch wide recessed electric fireplace with a recessed swivel mount television above. The optional vaulted ceiling in the living room and kitchen rises to 13 feet at the center. The pocket doors leading into the master suite and office can either be closed for privacy or left open to provide great sightlines through the large 5'-4" wide openings. The modern walk-in shower in the master bathroom provides both easy access and eliminates the maintenance required by glass doors. Measuring over 6'-6" from end to end, the shower accommodates dual shower heads and a built-in bench. The master ensuite also includes a dual sink vanity and large walk-in closet with an optional laundry chute. The pocket door in the hallway can be closed to provide a private bathroom ensuite for guests. This design also features a covered front and rear porch and a mudroom/laundry room complete with a linen cabinet, a coat closet and a large mechanical closet. An extra deep double garage is conveniently located off of the mudroom.
Specifications
Total 1496 sq ft
- Main: 1496
- Second: 0
- Third: 0
- Loft/Bonus: 0
- Basement: 0
- Garage: 624
Rooms
- Beds: 3
- Baths: 2
- 1/2 Bath: 0
- 3/4 Bath: 0
Ceiling Height
- Main: 9'-0
- Second:
- Third:
- Loft/Bonus:
- Basement:
- Garage: 9'-4
Details
- Exterior Walls: 2x6
- Garage Type: 2 Car Garage
- Width: 68'-0
- Depth: 50'-0
Roof
- Max Ridge Height: 20'-7
- Comments: (from grade)
- Primary Pitch: 7/12
- Secondary Pitch: 8/12

833–493–0942






















