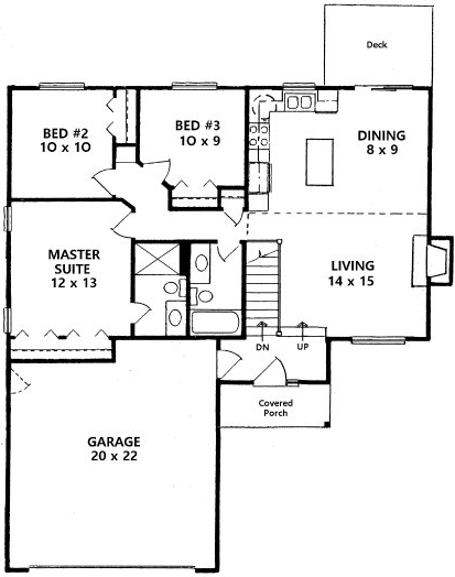
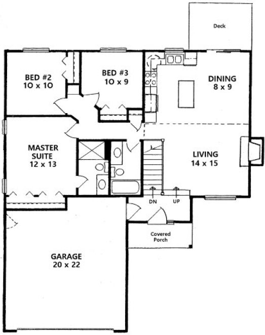
Plan No.354201
Recently updated to "open concept" with an expanded Kitchen, 4' MBR shower and a covered porch. Vaulted ceilings in Living, Dining and Kitchen. If Daylight Basement is finished it will add a Rec Room, 1 Bedroom and a Bath.
Specifications
Total 1024 sq ft
- Main: 1024
- Second: 0
- Third: 0
- Loft/Bonus: 0
- Basement: 875
- Garage: 0
Rooms
- Beds: 3
- Baths: 2
- 1/2 Bath: 0
- 3/4 Bath: 0
Ceiling Height
- Main: 8'0
- Second:
- Third:
- Loft/Bonus:
- Basement: 8'0
- Garage:
Details
- Exterior Walls: 2x4
- Garage Type: 2 Car Garage
- Width: 42'0
- Depth: 46'0
Roof
- Max Ridge Height:
- Comments: ()
- Primary Pitch: 6/12
- Secondary Pitch: 0/12
Add to Cart
Pricing
Full Rendering – westhomeplanners.com
MAIN Plan – westhomeplanners.com
REAR Elevation – westhomeplanners.com
[Back to Search Results]

833–493–0942

