Plan No.340802
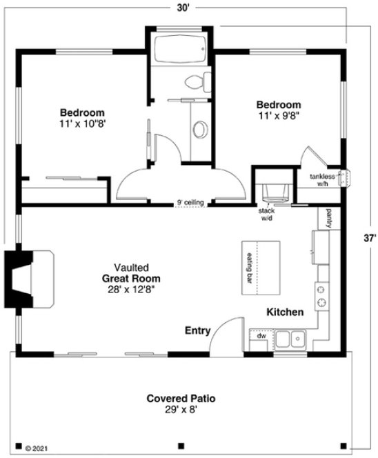
A simple shed roof and lap siding give the Iris Cottage a modern look. The front covered porch spans the width of the home offering a nice space for a small bistro set or patio chairs. Inside the floor plan immediately opens up to the great room. A cozy fireplace can be enjoyed throughout the space and a set of double sliding glass doors opens the great room to the outdoors. A full kitchen with an eating bar is opposite the great room. Tucked away behind a sliding barn door is a stacking washer and dryer. Off the great room is a small hallway that leads to the compartmentalized full bathroom and two bedrooms. One of the bedrooms has direct access to the bathroom through a pocket door. The Iris Cottage is a great small design that offers flexibility to be used as either a primary residence for those looking for a tiny house or as a guest cottage or accessory dwelling unit. The full kitchen allows the occupants to be independent of the main house making it a great option for those who entertain family or friends for extended periods of time or have family they want to keep close by - such as college-age children or aging parents. Total Living Area may increase with Basement Foundation option. See our garage plan collection. If you order a house and garage plan at the same time, you will get 10% off your total order amount.
Specifications
Total 800 sq ft
- Main: 800
- Second: 0
- Third: 0
- Loft/Bonus: 0
- Basement: 0
- Garage: 0
Rooms
- Beds: 2
- Baths: 1
- 1/2 Bath: 0
- 3/4 Bath: 0
Ceiling Height
- Main: 9'0+
- Second:
- Third:
- Loft/Bonus:
- Basement:
- Garage:
Details
- Exterior Walls: 2x6
- Garage Type: none
- Width: 30'0
- Depth: 37'0
Roof
- Max Ridge Height: 17'11
- Comments: (Main Floor to Peak)
- Primary Pitch: 3/12
- Secondary Pitch: 0/12

833–493–0942



