Plan No.707103
Perfect Lake House
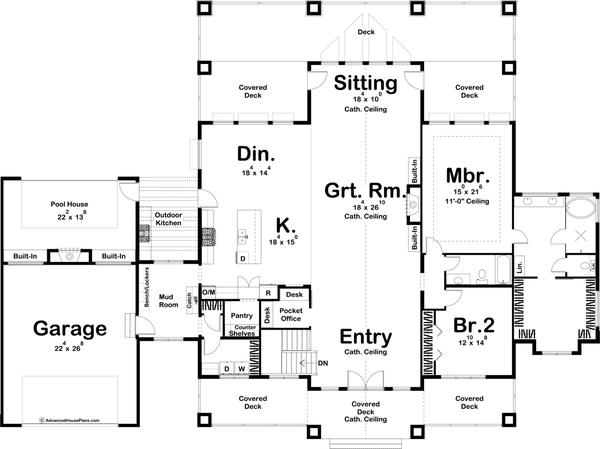
If you are looking for the perfect lake house, look no further than this plan. The rustic exterior combines wood siding, stone columns, and large windows to give the home amazing curb appeal. Guests are immediately greeted by a massive front covered porch. Just inside the home, the entry, great room and sitting room lie under a soaring cathedral ceiling. The great room is warmed by a fireplace that is flanked by built-in bookshelves. The sitting room includes large windows for great views to the rear of the home. The kitchen and dining area flow seamlessly with the rest of the home in an open layout. The kitchen includes a large island and a walk-in pantry. Just outside of the kitchen, an outdoor kitchen will help you take your outdoor entertainment game up a notch. The master suite, includes a bathroom with his/her vanities, a wet room, an enclosed toilet area, and a large walk-in closet. Bedroom 2 shares a bathroom with the main living area. The 2-car garage accesses the home through an amazing mud room. Enjoy the outdoors with a pool house attached to the back of the garage. An optional finished basement adds 2318 sq. ft. and includes a wet bar, a golf simulator, 2 additional bedrooms, an exercise room, an additional family room and a table area. A large storage area includes a hidden safe room.
Specifications
Total 3017 sq ft
- Main: 3017
- Second: 0
- Third: 0
- Loft/Bonus: 0
- Basement: 0
- Garage: 615
Rooms
- Beds: 2
- Baths: 2
- 1/2 Bath: 0
- 3/4 Bath: 0
Ceiling Height
- Main: 10'0
- Second:
- Third:
- Loft/Bonus:
- Basement: 9'0
- Garage:
Details
- Exterior Walls: 2x4
- Garage Type: 2 Car Garage
- Width: 100'0
- Depth: 71'0
Roof
- Max Ridge Height:
- Comments: ()
- Primary Pitch: 8/12
- Secondary Pitch: 3/12

833–493–0942







