Plan No.754102
Specifications
Total 2014 sq ft
- Main: 2014
- Second: 0
- Third: 0
- Loft/Bonus: 0
- Basement: 2001
- Garage: 1185
Rooms
- Beds: 2
- Baths: 2
- 1/2 Bath: 1
- 3/4 Bath: 0
Ceiling Height
- Main: 9'0+
- Second:
- Third:
- Loft/Bonus:
- Basement: 9'0
- Garage:
Details
- Exterior Walls: 2x6
- Garage Type: 3 Car Garage
- Width: 107'0
- Depth: 46'0
Roof
- Max Ridge Height: 17'0
- Comments: (Main Floor to Peak)
- Primary Pitch: 3/12
- Secondary Pitch: 2/12
Add to Cart
Pricing
Front Rendering – westhomeplanners.com
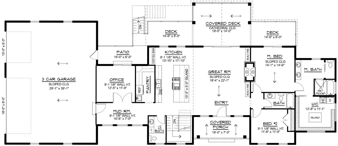
Main Floor Plan – westhomeplanners.com
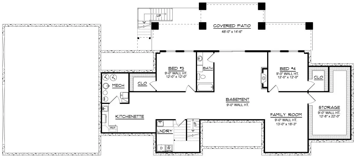
Basement Floor Plan – westhomeplanners.com
Front Porch – westhomeplanners.com
Front & Right – westhomeplanners.com
Rear & Left – westhomeplanners.com
Right & Rear – westhomeplanners.com
Rear Covered Deck & Porch – westhomeplanners.com
Rear – westhomeplanners.com
Right & Rear – westhomeplanners.com
[Back to Search Results]

833–493–0942








