Plan No.580989
Compact Design with Full Sized Amenities
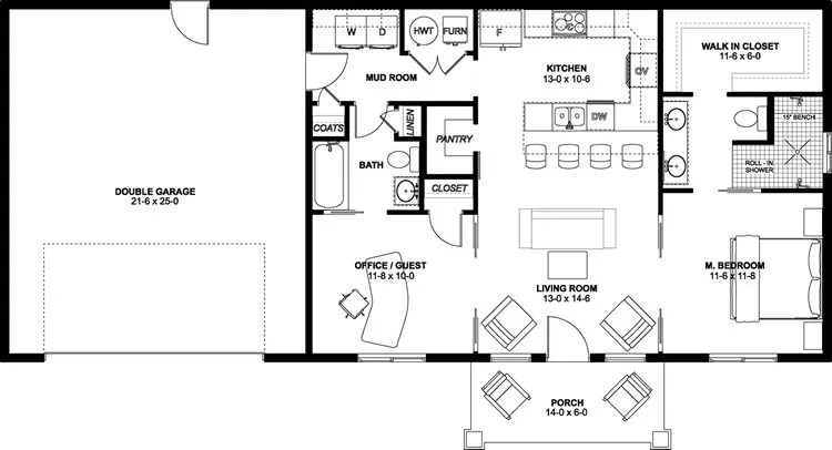
This compact plan features a fully equipped kitchen with a walk-in pantry and eating bar that comfortably seats up to four. The spacious floor plan accommodates full sized furniture and appliances. 9' ceilings and pocket doors throughout the home create a spacious and open feeling. The pocket doors leading into the main bedroom and office can either be closed for privacy or left open to provide great sightlines through the large 5' wide openings. The modern walk-in shower in the main bathroom provides both easy access and eliminates the maintenance required by glass doors. Measuring over 6'-6” from end to end, the shower accommodates dual shower heads and a built-in bench. The main ensuite also includes a dual sink vanity and a large walk-in closet. The alternate bath layout is included on the floorplans. This design also features a covered front porch, a full bath for guests and a mudroom/laundry room that leads to an extra deep double garage.
Specifications
Total 988 sq ft
- Main: 988
- Second: 0
- Third: 0
- Loft/Bonus: 0
- Basement: 0
- Garage: 572
Rooms
- Beds: 2
- Baths: 2
- 1/2 Bath: 0
- 3/4 Bath: 0
Ceiling Height
- Main: 9'-0
- Second:
- Third:
- Loft/Bonus:
- Basement:
- Garage: 9'-4
Details
- Exterior Walls: 2x6
- Garage Type: 2 Car Garage
- Width: 60'-0
- Depth: 32'-0
Roof
- Max Ridge Height: 19'-5
- Comments: ()
- Primary Pitch: 8/12
- Secondary Pitch: 8/12

833–493–0942






















