Plan No.744231
Country Style Rancher
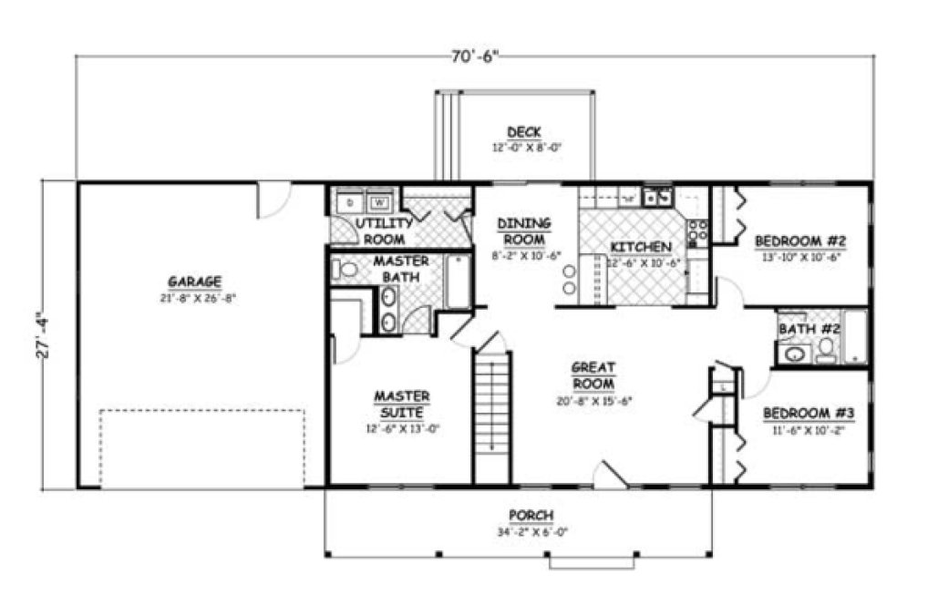
Designed for the young family, this home has a good balance between private and public spaces. Its simple layout will enable this home to remain affordable to build. Great room - From the front porch enter immediately into the heart of the home. This delightfully open space is adjacent to the dining room and the kitchen making it the gathering spot for all. Kitchen - A stand-alone island with countertop seating separating the kitchen and dining room enables the cook to interact with others while preparing meals. Dining Room - Open to the kitchen and the great room family meals as well as formal dinner parties will be a delight in this lovely space. Step through a set of sliding doors leading to a gracious rear deck for outdoor dining. Master Suite - Set apart from the secondary bedrooms in the home and featuring a private bath gives this lovely room a touch more privacy. Secondary Bedrooms - Moderately sized, these rooms are just off the great room and with a separate hallway, as well as a centrally located bathroom.
Specifications
Total 1324 sq ft
- Main: 1324
- Second: 0
- Third: 0
- Loft/Bonus: 0
- Basement: 0
- Garage: 0
Rooms
- Beds: 3
- Baths: 2
- 1/2 Bath: 0
- 3/4 Bath: 0
Ceiling Height
- Main: 8'0
- Second:
- Third:
- Loft/Bonus:
- Basement:
- Garage:
Details
- Exterior Walls: 2x6
- Garage Type: 2 Car Garage
- Width: 70'6
- Depth: 27'4
Roof
- Max Ridge Height: 21'9
- Comments: (Main Floor to Roof Peak)
- Primary Pitch: 8/12
- Secondary Pitch: 0/12

833–493–0942





