Plan No.302932
Modern Farmhouse with Secluded Master Suite and Unfinished Bonus Room
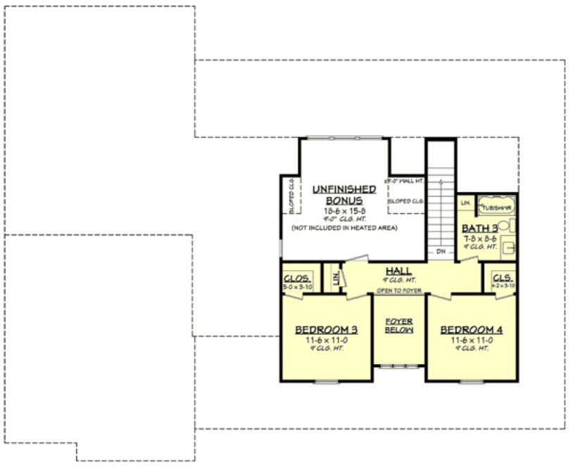
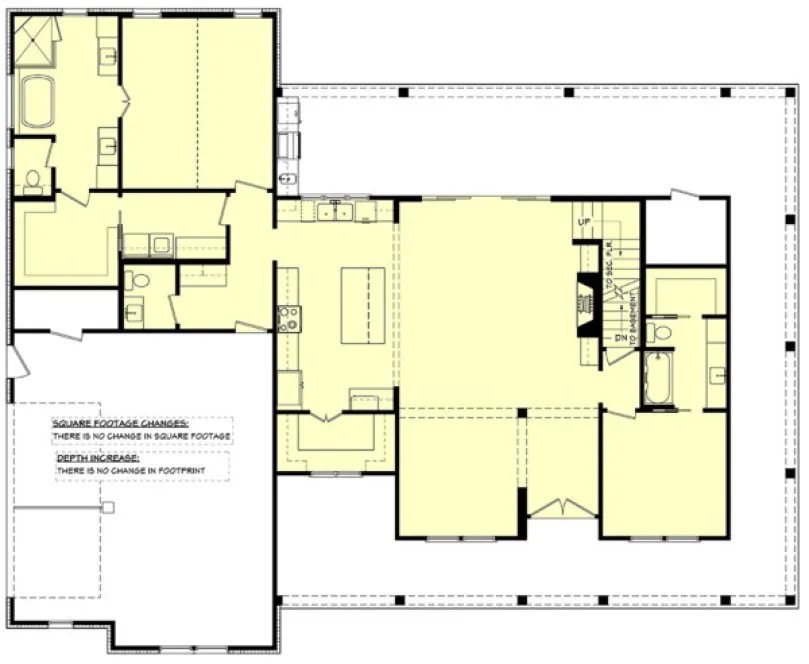
This very attractive farmhouse with 4 bedrooms and 3.5 baths is perfect for country living or would be a beautiful addition to any suburban neighborhood. The 2-story ceiling in the foyer welcomes you and leads to an open floor plan with a large Kitchen and Great Room. The Kitchen features a big eat-at island and walk-in pantry. The Master Bedroom has a well-appointed ensuite bath and walk-in closet that can be accessed through he laundry room. Important Notice: Material list only includes materials for the base slab and crawlspace versions. Basement and 2x6 wall options NOT included. Unlimited License To Build included with CAD file sale. CAD file sale also includes PDF file. All of our CAD files are delivered in .DWG format and do not contain any type of 3D capability. Files are delivered in 2004 format so that older software versions will be able to open the files.
Specifications
Total 2392 sq ft
- Main: 1903
- Second: 489
- Third: 0
- Loft/Bonus: 268
- Basement: 0
- Garage: 697
Rooms
- Beds: 4
- Baths: 3
- 1/2 Bath: 1
- 3/4 Bath: 0
Ceiling Height
- Main: 10'0
- Second: 9'0
- Third:
- Loft/Bonus: 9'0
- Basement:
- Garage:
Details
- Exterior Walls: 2x4
- Garage Type: 2 Car Garage
- Width: 72'8
- Depth: 59'0
Roof
- Max Ridge Height: 30'0
- Comments: (Main Floor to Roof Peak)
- Primary Pitch: 10/12
- Secondary Pitch: 0/12

833–493–0942







