Plan No.304932
Great Front Porch
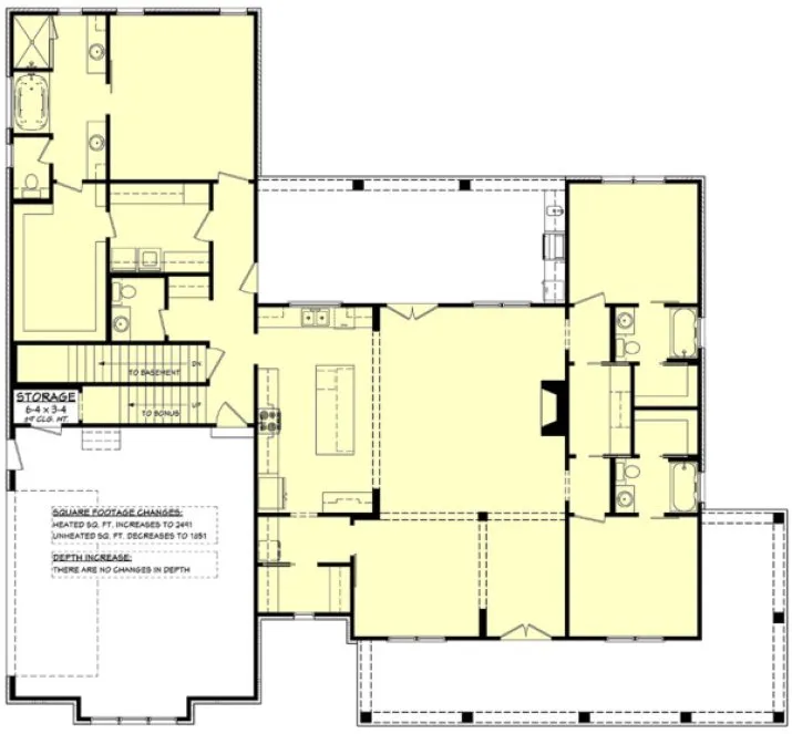
This multi-featured farmhouse design is sure to be a hit with your family. The open plan boasts a large Great Room with a volume ceiling, the Kitchen has a spacious island with a big walk-in Pantry close by. The Master Suite is well-appointed with a luxurious Ensuite Bath and an over-sized walk-in closet. The Secondary Bedrooms both have private baths and walk-in closets, and look at that handy pocket office, perfect for working on homework assignments. To complete the package there are two generous covered outdoor living spaces and the rear porch offers an outdoor kitchen. Total Living Area increases to 2491 sq. ft. with the Basement Foundation option.
Specifications
Total 2394 sq ft
- Main: 2394
- Second: 390
- Third: 0
- Loft/Bonus: 0
- Basement: 0
- Garage: 651
Rooms
- Beds: 3
- Baths: 3
- 1/2 Bath: 1
- 3/4 Bath: 0
Ceiling Height
- Main: 10'0-12'0
- Second: 8'0
- Third:
- Loft/Bonus:
- Basement:
- Garage:
Details
- Exterior Walls: 2x4
- Garage Type: 2 Car Garage
- Width: 75'0
- Depth: 69'0
Roof
- Max Ridge Height: 29'0
- Comments: (Main Floor to Peak)
- Primary Pitch: 9/12
- Secondary Pitch: 0/12
Add to Cart
Pricing
– westhomeplanners.com
– westhomeplanners.com
– westhomeplanners.com
Opt. Basement Stairs – westhomeplanners.com
Front & Right – westhomeplanners.com
Front & Left – westhomeplanners.com
Rear Photo – westhomeplanners.com
Front Porch – westhomeplanners.com
Rear Covered Porch – westhomeplanners.com
Rear Covered Porch – westhomeplanners.com
Dining & Foyer – westhomeplanners.com
Great Room – westhomeplanners.com
Great Rm to Rear Porch – westhomeplanners.com
Great Rm to Kitchen – westhomeplanners.com
Kitchen Island – westhomeplanners.com
Kitchen – westhomeplanners.com
Kitchen – westhomeplanners.com
Dining – westhomeplanners.com
Master Bedroom – westhomeplanners.com
Master Bathroom – westhomeplanners.com
Master Soaker Tub – westhomeplanners.com
Master Bath Shower – westhomeplanners.com
Bedroom 3 – westhomeplanners.com
Laundry – westhomeplanners.com
Powder Room – westhomeplanners.com
Garage Entry – westhomeplanners.com
Bonus Room – westhomeplanners.com
Bonus Bath – westhomeplanners.com
– westhomeplanners.com
– westhomeplanners.com
– westhomeplanners.com
FRONT Elevation – westhomeplanners.com
[Back to Search Results]

833–493–0942






























