Plan No.750081
See our garage plan collection. If you order a house and garage plan at the same time, you will get 10% off your total order amount. Total Living Area may increase with Basement Foundation option.
Specifications
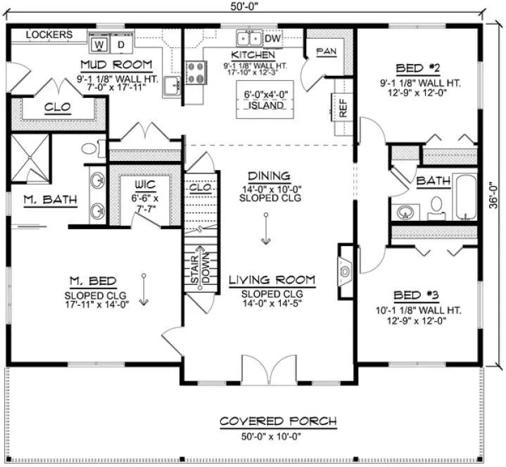
Total 1800 sq ft
- Main: 1800
- Second: 0
- Third: 0
- Loft/Bonus: 0
- Basement: 0
- Garage: 0
Rooms
- Beds: 3
- Baths: 2
- 1/2 Bath: 0
- 3/4 Bath: 0
Ceiling Height
- Main: 9'0+
- Second:
- Third:
- Loft/Bonus:
- Basement:
- Garage:
Details
- Exterior Walls: 2x6
- Garage Type: none
- Width: 50'0
- Depth: 36'0
Roof
- Max Ridge Height: 16'9
- Comments: (Main Floor to Peak)
- Primary Pitch: 2/12
- Secondary Pitch: 0/12
Add to Cart
Pricing
– westhomeplanners.com
– westhomeplanners.com
Front & Right – westhomeplanners.com
Front & Left – westhomeplanners.com
Right & Rear – westhomeplanners.com
Front Covered Patio – westhomeplanners.com
Opt. Basement Stairs – westhomeplanners.com
Dining / Living – westhomeplanners.com
Living to Dining/Kitchen – westhomeplanners.com
Kitchen – westhomeplanners.com
– westhomeplanners.com
[Back to Search Results]

833–493–0942









