Plan No.305322
Modern Farmhouse with Loft and Wrap-around Porch
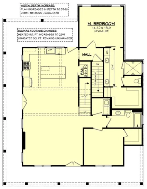
This Modern Farmhouse two storey, 4 bedroom, 3 bath house plan is loaded with all the most popular features. It offers a luxurious master suite, a spacious ensuite bath, an oversized closet, a large walk-in pantry, volume ceilings and great curb appeal. The open concept floor plan offers great spaces for entertaining and includes a spacious wrap-around porch. See our garage plan collection. If you order a house and garage plan at the same time, you will get 10% off your total order amount.
Specifications
Total 2235 sq ft
- Main: 1569
- Second: 666
- Third: 0
- Loft/Bonus: 0
- Basement: 0
- Garage: 0
Rooms
- Beds: 4
- Baths: 3
- 1/2 Bath: 0
- 3/4 Bath: 0
Ceiling Height
- Main: 10'0
- Second: 9'0
- Third:
- Loft/Bonus:
- Basement:
- Garage:
Details
- Exterior Walls: 2x4
- Garage Type: none
- Width: 45'0
- Depth: 53'6
Roof
- Max Ridge Height: 29'0
- Comments: (Main Floor to Peak)
- Primary Pitch: 8/12
- Secondary Pitch: 0/12
Add to Cart
Pricing
– westhomeplanners.com
– westhomeplanners.com
– westhomeplanners.com
Opt. Basement Stairs – westhomeplanners.com
Dusk Rendering – westhomeplanners.com
– westhomeplanners.com
– westhomeplanners.com
– westhomeplanners.com
FRONT Elevation – westhomeplanners.com
[Back to Search Results]

833–493–0942







