Plan No.310142
Enjoy Time Together
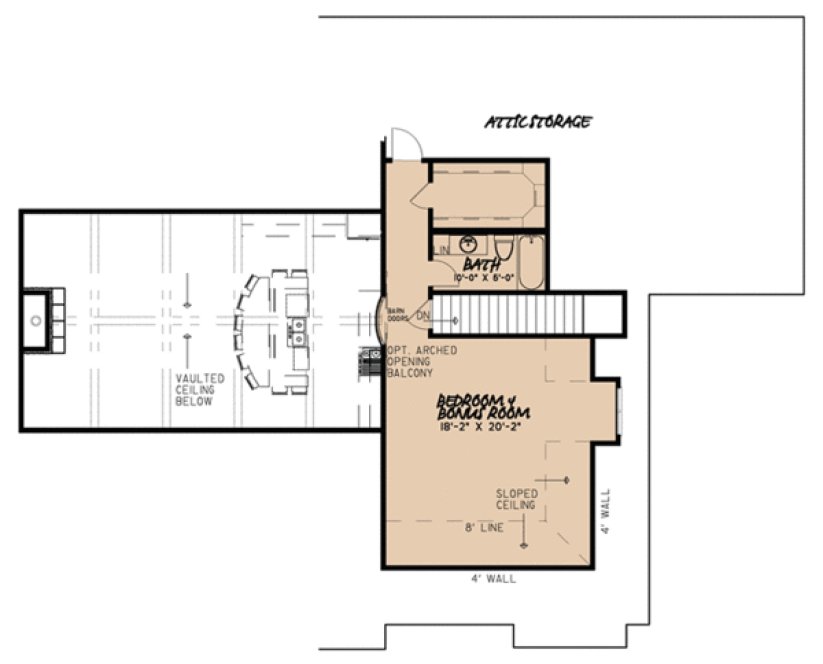
A beautiful blend of brick, stone and shake siding is complemented by stone based columns and wood shutters in this stunning house plan. The open floor plan is perfect for family gatherings, letting everyone enjoy time together, and during fair weather take the party outside to the outdoor living space! The split bedroom designs allows privacy to the master suite and peace and quiet in the mornings while the kids are getting ready for school! The upstairs bonus room is the perfect place for a media room or optional bedroom giving you plenty of space. **Optional Bedroom 4 Upstairs** Please note, the Bonus Room area is not included in the total square footage.
Specifications
Total 2410 sq ft
- Main: 2410
- Second: 0
- Third: 0
- Loft/Bonus: 599
- Basement: 0
- Garage: 1009
Rooms
- Beds: 4
- Baths: 4
- 1/2 Bath: 1
- 3/4 Bath: 0
Ceiling Height
- Main: 9'0-10'0+
- Second:
- Third:
- Loft/Bonus: 8'0
- Basement:
- Garage:
Details
- Exterior Walls: 2x4
- Garage Type: 3 Car Garage
- Width: 81'6
- Depth: 65'5
Roof
- Max Ridge Height: 32'0
- Comments: (Main Floor to Peak)
- Primary Pitch: 12/12
- Secondary Pitch: 0/12
Add to Cart
Pricing
– westhomeplanners.com
– westhomeplanners.com
– westhomeplanners.com
– westhomeplanners.com
[Back to Search Results]

833–493–0942


