Plan No.201198
Nicely Proportioned
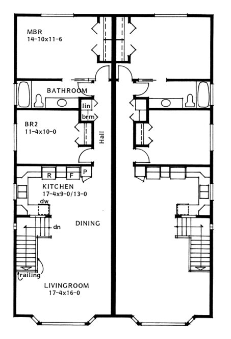
This nicely proportioned two bedroom duplex has the potential of a one bedroom suite downstairs with shared laundry facilities. This is a good open plan with a very spacious feel, large rooms and lots of closet space spell success. Many pleasant hours will be enjoyed in the combination kitchen, dining and livingroom...and the bay window adds a nice touch as does the spindled railing of the open staircase.
Specifications
Total 1063 sq ft
- Main: 1024
- Second: 0
- Third: 0
- Loft/Bonus: 0
- Basement: 996
- Garage: 0
Rooms
- Beds: 2
- Baths: 1
- 1/2 Bath: 0
- 3/4 Bath: 0
Ceiling Height
- Main: 8
- Second:
- Third:
- Loft/Bonus:
- Basement:
- Garage:
Details
- Exterior Walls: 2x6
- Garage Type:
- Width: 36
- Depth: 56
Roof
- Max Ridge Height:
- Comments: ()
- Primary Pitch: 4/12
- Secondary Pitch: 0/12
Add to Cart
Pricing
– westhomeplanners.com
– westhomeplanners.com
– westhomeplanners.com
[Back to Search Results]

833–493–0942

