Plan No.303522
Transitional Modern Farmhouse with Home Office and Wrap-around Verandah
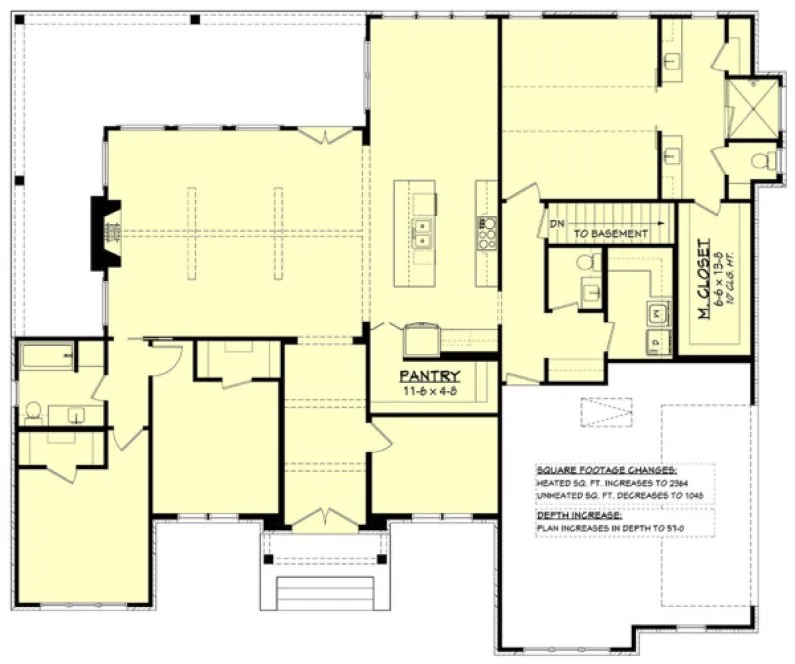
Featuring an open floor plan, the Great Room is at the heart of this design and boasts a vaulted ceiling with decorative beams and abundant natural light. A wrap around rear and side porch offers a pleasant protected area for enjoying the outdoors. Both secondary bedrooms are a good size and have walk-in-closets. There is a home office placed conveniently of the wide attractive foyer. A spacious kitchen with an island eat-at bar also offers a large walk-in pantry. The gorgeous oversized master suite with a vaulted ceiling features a well-appointed ensuite bath with separated dual vanities and a big custom shower.
Specifications
Total 2253 sq ft
- Main: 2253
- Second: 0
- Third: 0
- Loft/Bonus: 0
- Basement: 0
- Garage: 548
Rooms
- Beds: 3
- Baths: 2
- 1/2 Bath: 1
- 3/4 Bath: 0
Ceiling Height
- Main: 10'0-14'0
- Second:
- Third:
- Loft/Bonus:
- Basement:
- Garage:
Details
- Exterior Walls: 2x4
- Garage Type: 2 Car Garage
- Width: 68'10
- Depth: 53'0
Roof
- Max Ridge Height: 27'0
- Comments: (Main Floor to Peak)
- Primary Pitch: 8/12
- Secondary Pitch: 0/12
Add to Cart
Pricing
– westhomeplanners.com
– westhomeplanners.com
Opt. Basement Stairs – westhomeplanners.com
Front - Dusk Rendering – westhomeplanners.com
Front & Left – westhomeplanners.com
Front & Right – westhomeplanners.com
Front Porch – westhomeplanners.com
Rear & Left – westhomeplanners.com
Dining – westhomeplanners.com
Kichen & Dining – westhomeplanners.com
Kitchen Island – westhomeplanners.com
Kitchen – westhomeplanners.com
Kitchen – westhomeplanners.com
Kitchen to Dining – westhomeplanners.com
Kitchen to Great Room – westhomeplanners.com
Great Room – westhomeplanners.com
Great Rm Feature Wall – westhomeplanners.com
Master Bedroom – westhomeplanners.com
Master Bath – westhomeplanners.com
– westhomeplanners.com
– westhomeplanners.com
– westhomeplanners.com
FRONT Elevation – westhomeplanners.com
[Back to Search Results]

833–493–0942





















