Plan No.300071
Country Farmhouse with Open Floor Plan
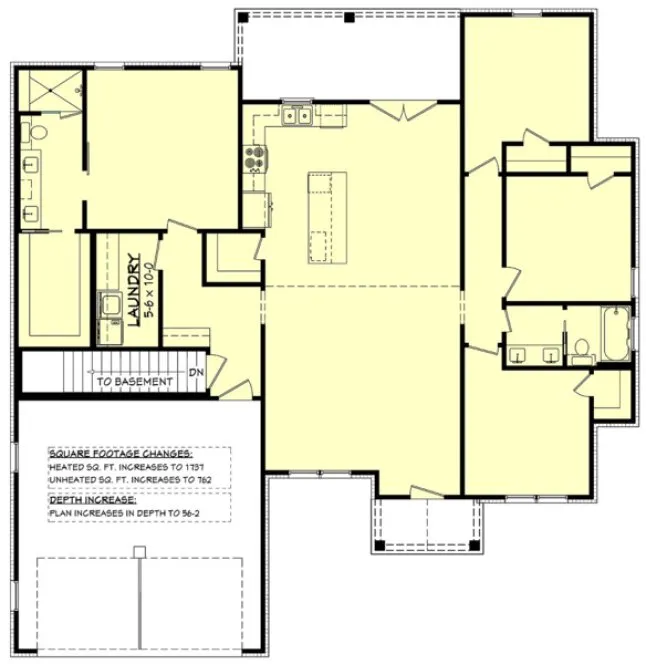
A generous covered rear porch offers plenty of space for relaxing or entertaining. The Kitchen features a large island with eating bar and a walk-in pantry and opens onto the spacious dining and living areas. The Master Suite includes a double vanity, custom shower, and a large walk-in closet. Three additional bedrooms on the right side of the house share a split bathroom with double vanities making this a perfect family home.
Specifications
Total 1700 sq ft
- Main: 1700
- Second: 0
- Third: 0
- Loft/Bonus: 0
- Basement: 0
- Garage: 484
Rooms
- Beds: 4
- Baths: 2
- 1/2 Bath: 0
- 3/4 Bath: 0
Ceiling Height
- Main: 9'0-10'0
- Second:
- Third:
- Loft/Bonus:
- Basement:
- Garage:
Details
- Exterior Walls: 2x4
- Garage Type: 2 Car Garage
- Width: 54'6
- Depth: 51'10
Roof
- Max Ridge Height: 25'0
- Comments: (Main Floor to Peak)
- Primary Pitch: 10/12
- Secondary Pitch: 0/12
Add to Cart
Pricing
– westhomeplanners.com
– westhomeplanners.com
Opt. Basement Stairs – westhomeplanners.com
– westhomeplanners.com
– westhomeplanners.com
– westhomeplanners.com
FRONT Elevation – westhomeplanners.com
[Back to Search Results]

833–493–0942





