Plan No.300002
Modern Farmhouse Styled Barndominium with Great Open Plan
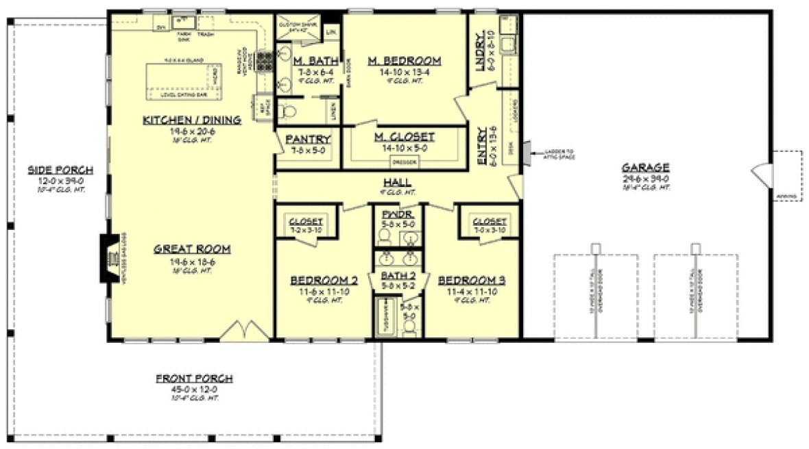
Here is a Barndominium design with large open spaces for entertaining. It has three bedrooms all with walk-in closets, ensuite baths, and an extra half bath. Featuring an open concept great room, casual dining area, and a generous-sized kitchen with a huge eat at island and walk-in pantry, all boasting a 16'-0" high ceiling with a wrapped porch and large windows. The garage is oversized and has access via a ladder to storage over the main living space.
Specifications
Total 2000 sq ft
- Main: 2000
- Second: 0
- Third: 0
- Loft/Bonus: 0
- Basement: 0
- Garage: 1200
Rooms
- Beds: 3
- Baths: 2
- 1/2 Bath: 1
- 3/4 Bath: 0
Ceiling Height
- Main: 9'0-16'0
- Second:
- Third:
- Loft/Bonus:
- Basement:
- Garage:
Details
- Exterior Walls: 2x6
- Garage Type: 2 Car Garage
- Width: 92'0
- Depth: 52'0
Roof
- Max Ridge Height: 30'0
- Comments: (Main Floor to Peak)
- Primary Pitch: 8/12
- Secondary Pitch: 0/12
Add to Cart
Pricing
– westhomeplanners.com
– westhomeplanners.com
Dusk Rendering – westhomeplanners.com
– westhomeplanners.com
– westhomeplanners.com
– westhomeplanners.com
FRONT Elevation – westhomeplanners.com
[Back to Search Results]

833–493–0942





