Plan No.304912
Modern Farmhouse with Vaulted Great Room
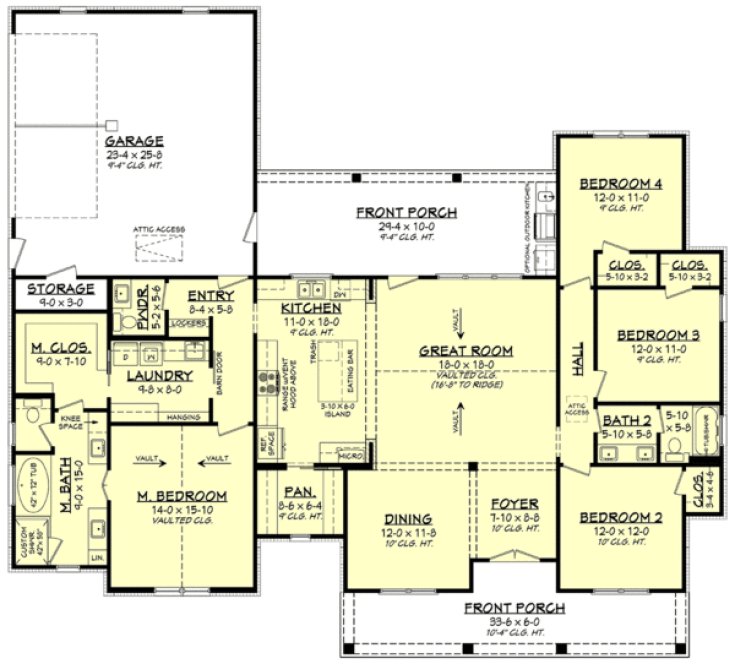
A well-appointed floor plan with four bedrooms all with walk-in closets. A large open plan kitchen features a large eat at island and big walk-in pantry. The dining & great room provide plenty of room for entertaining and open to large porches for outdoor living in good weather. The spacious main suite with oversized closet conveniently connects directly to the laundry.
Specifications
Total 2194 sq ft
- Main: 2194
- Second: 0
- Third: 0
- Loft/Bonus: 0
- Basement: 0
- Garage: 624
Rooms
- Beds: 4
- Baths: 2
- 1/2 Bath: 1
- 3/4 Bath: 0
Ceiling Height
- Main: 9'0-16'8
- Second:
- Third:
- Loft/Bonus:
- Basement:
- Garage:
Details
- Exterior Walls: 2x4
- Garage Type: 2 Car Garage
- Width: 69'8
- Depth: 63'0
Roof
- Max Ridge Height: 26'0
- Comments: (Main Floor to Peak)
- Primary Pitch: 9/12
- Secondary Pitch: 0/12
Add to Cart
Pricing
– westhomeplanners.com
– westhomeplanners.com
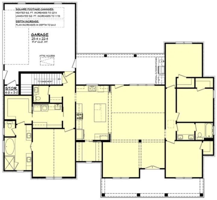
Opt. Basement Plan – westhomeplanners.com
Dusk Rendering – westhomeplanners.com
– westhomeplanners.com
– westhomeplanners.com
– westhomeplanners.com
FRONT Elevation – westhomeplanners.com
[Back to Search Results]

833–493–0942






