Plan No.697851
Specifications
Total 1587 sq ft
- Main: 992
- Second: 0
- Third: 0
- Loft/Bonus: 200
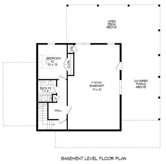
- Basement: 992
- Garage: 0
Rooms
- Beds: 2
- Baths: 2
- 1/2 Bath: 1
- 3/4 Bath: 0
Ceiling Height
- Main: 9'0
- Second:
- Third:
- Loft/Bonus:
- Basement:
- Garage:
Details
- Exterior Walls: 2x6
- Garage Type: 1 Car Garage
- Width: 57'0
- Depth: 52'0
Roof
- Max Ridge Height: 30'6
- Comments: (Main Floor to Peak)
- Primary Pitch: 3.5/12
- Secondary Pitch: 0/12
Add to Cart
Pricing
– westhomeplanners.com
– westhomeplanners.com
– westhomeplanners.com
– westhomeplanners.com
– westhomeplanners.com
– westhomeplanners.com
– westhomeplanners.com
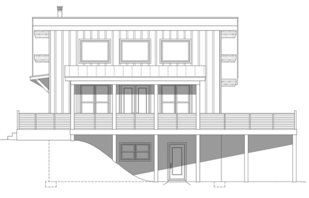
FRONT Elevation – westhomeplanners.com
[Back to Search Results]

833–493–0942






